Caractéristiques
-
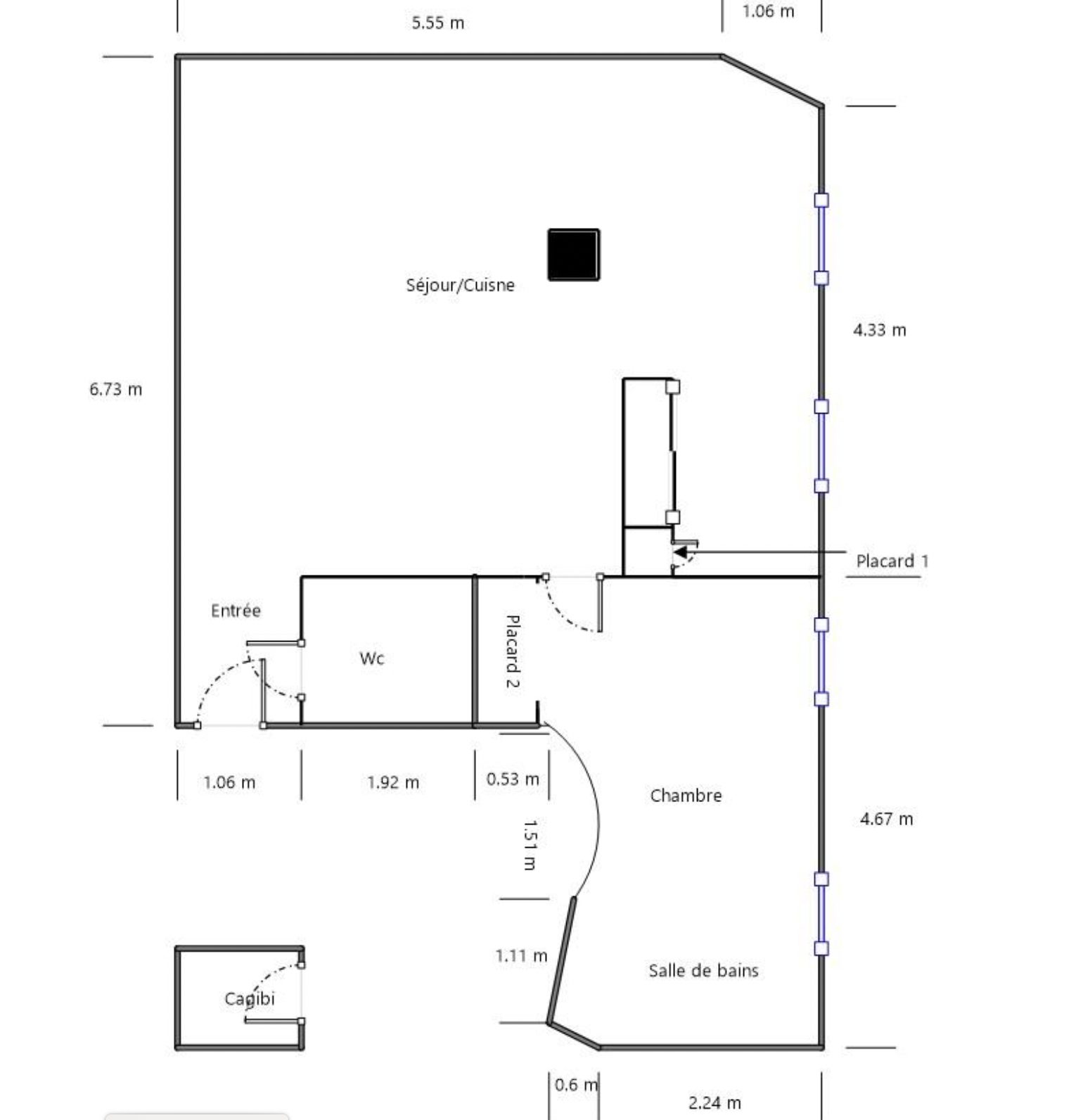
Surface 49.16 m²
-
Surface carrez 49.16 m²
-
Surface sejour 33 m²
-
Nombre de pièces 2
-
Nombre de chambres 1
-
Nombre de salles de bain 1
-
Nombre de toilettes 1
-
Etage 4
-
Digicode Oui
Description
Mandat 210831
T2 dernier étage, au calme, sans vis à vis.
Lyon 1er, dans un secteur calme et recherché, découvrez cet appartement de type T2, d'une superficie de 50 m² situé au 4ème et dernier étage.
Baigné de lumière grâce à sa vue dégagée, et donnant uniquement sur cour pour plus de calme, l'appartement se compose d'une entrée, d'une pièce de vie spacieuse, d'une chambre avec salle de bain attenante, et d' un W.C indépendant.
Un cellier de 2m², idéal pour le rangement complète cette acquisition.
Parfait pour tous ceux qui souhaite personnaliser leur intérieur, et en faire un véritable cocon à leur image.
Le tout à deux pas d'une vie de quartier commerçante, dynamique, artistique et bien plus encore.
Ne manquez pas cette opportunité, contactez-moi dès aujourd'hui pour une visite et laissez-vous séduire par le potentiel de ce bien.
Anissa Boudilmi
RSAC 912 274 909
06.87.93.82.62
a.boudilmi@pietrapolis.fr
Lyon 1er, dans un secteur calme et recherché, découvrez cet appartement de type T2, d'une superficie de 50 m² situé au 4ème et dernier étage.
Baigné de lumière grâce à sa vue dégagée, et donnant uniquement sur cour pour plus de calme, l'appartement se compose d'une entrée, d'une pièce de vie spacieuse, d'une chambre avec salle de bain attenante, et d' un W.C indépendant.
Un cellier de 2m², idéal pour le rangement complète cette acquisition.
Parfait pour tous ceux qui souhaite personnaliser leur intérieur, et en faire un véritable cocon à leur image.
Le tout à deux pas d'une vie de quartier commerçante, dynamique, artistique et bien plus encore.
Ne manquez pas cette opportunité, contactez-moi dès aujourd'hui pour une visite et laissez-vous séduire par le potentiel de ce bien.
Anissa Boudilmi
RSAC 912 274 909
06.87.93.82.62
a.boudilmi@pietrapolis.fr
Détail des pièces
- Salon séjour: 31.71 m²
- Entrée: 1.72 m²
- WC: 2.78 m²
- Cellier: 2 m²
- Chambre: 12.06 m²
Bilan sur les performances énergétiques du bien
F
Classe énergétique
F
384 kWh/m².an
Logement à consommation d'énergie excessive
Classe climatique
F
84 kg CO2/m².an
Estimation des coûts énergétiques annuels du logement
Entre 1690€ et 2330€ par an
Prix moyens de l'énergie indexés sur l'année 0 (abonnements inclus)
Prix moyens de l'énergie indexés sur l'année 0 (abonnements inclus)
Informations financières
Taxe foncière : 477 €
Charges mensuelles : 44 €
En copropriété
Nombre de lots : 10
Pas de procédures en cours
Biens similaires aux alentours
Appartement - 2 pièces - 36 m²
69130 Écully 199 000 €
Exclusif
Appartement - 3 pièces - 57 m²
69110 Sainte-Foy-lès-Lyon 205 000 €
Exclusif
Appartement - 3 pièces - 80 m²
69230 Saint-Genis-Laval 199 000 €
Appartement - 3 pièces - 100 m²
01390 Civrieux 199 000 €
Exclusif
Appartement - 3 pièces - 60 m²
69008 Lyon 219 000 €
Exclusif
Appartement - 2 pièces - 42 m²
69380 Lozanne 164 000 €
Exclusif
Appartement - 3 pièces - 58 m²
69200 Vénissieux 180 000 €
Exclusif
Appartement - 3 pièces - 61 m²
69120 Vaulx-en-Velin 190 000 €
Prestige
Appartement - 2 pièces - 41 m² - PRESTIGE
69120 Vaulx-en-Velin 176 000 €
Appartement - 2 pièces - 42 m²
69200 Vénissieux 235 000 €Ce bien vous intéresse ?
Laissez un message
Votre contact
BOUDILMI Anissa
Lyon 3