Caractéristiques
-
Surface 96 m²
-
Surface carrez 96 m²
-
Nombre de pièces 4
-
Nombre de chambres 3
-
Nombre de salles de bain 1
-
Nombre de toilettes 1
-
Nombre de parkings couverts 1
-
Meuble Oui
-
Etage 2
-
Annee construction 1989
-
Ascenseur Oui
Description
Mandat 208231
T4 de 96 m² Carrez (105 m² au sol) situé au bout du cours Lafayette - proche du Totem.
Bel appartement familial traversant, très bien entretenu. On apprécie la lumière, les volumes, le coin nuit distinct de la partie vie, un appartement prêt à vivre.
On aime bien sûr la très grande cuisine dinatoire avec sa loggia (4 m²), le séjour et son balcon de 9,3 m².
À proximité immédiate des écoles et des commodités, au sein d’une copropriété très bien entretenue, avec façade et ascenseur rénovés.
Annexes
• Cave
• Box sécurisé en sous-sol (18 000 € en sus)
Contact : Stéphane GUINANT - 06 12 94 43 68
Bel appartement familial traversant, très bien entretenu. On apprécie la lumière, les volumes, le coin nuit distinct de la partie vie, un appartement prêt à vivre.
On aime bien sûr la très grande cuisine dinatoire avec sa loggia (4 m²), le séjour et son balcon de 9,3 m².
À proximité immédiate des écoles et des commodités, au sein d’une copropriété très bien entretenue, avec façade et ascenseur rénovés.
Annexes
• Cave
• Box sécurisé en sous-sol (18 000 € en sus)
Contact : Stéphane GUINANT - 06 12 94 43 68
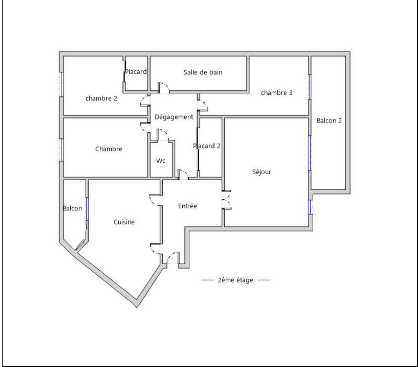
Détail des pièces
- Entrée: 7.05 m²
- Cuisine: 18.17 m²
- Loggia: 4.15 m²
- Dégagements et rangements : 8.34 m²
- Wc: 1.25 m²
- Chambre: 10.13 m²
- Chambre 2: 9.11 m²
- Chambre 3: 11.5 m²
- Séjour : 25.8 m²
- Balcon: 9.25 m²
Bilan sur les performances énergétiques du bien
C
Date de réalisation : 15/04/2025Classe énergétique
C
161 kWh/m².an
Classe climatique
A
5 kg CO2/m².an
Estimation des coûts énergétiques annuels du logement
Entre 1210€ et 1690€ par an
Prix moyens de l'énergie indexés sur l'année 0 (abonnements inclus)
Prix moyens de l'énergie indexés sur l'année 0 (abonnements inclus)
Informations financières
Taxe foncière : 1 300 €
Charges mensuelles : 133 €
En copropriété
Nombre de lots : 60
Pas de procédures en cours
Biens similaires aux alentours
Appartement - 3 pièces - 88 m²
69006 Lyon 329 000 €
Exclusif
Appartement - 3 pièces - 73 m²
69007 Lyon 329 000 €
Exclusif
Appartement - 3 pièces - 73 m²
69003 Lyon 325 000 €
Exclusif
Appartement - 3 pièces - 87 m²
69006 Lyon 329 000 €
Exclusif
Appartement - 4 pièces - 90 m²
69600 Oullins 279 000 €
Exclusif
Appartement - 4 pièces - 81 m²
69100 Villeurbanne 315 000 €
Exclusif
Appartement - 4 pièces - 95 m²
69100 Villeurbanne 370 000 €
Exclusif
Appartement - 4 pièces - 95 m²
69003 Lyon 370 000 €
Exclusif
Appartement - 3 pièces - 75 m²
69100 Villeurbanne 299 000 €
Appartement - 3 pièces - 60 m²
69110 Sainte-Foy-lès-Lyon 280 000 €Ce bien vous intéresse ?
Laissez un message
Votre contact
GUINANT Stéphane
Lyon 3