Caractéristiques
-
Surface 104 m²
-
Surface habitable 104 m²
-
Surface terrain 745 m²
-
Surface sejour 29 m²
-
Nombre de pièces 4
-
Nombre de chambres 3
-
Nombre de salles de bain 1
-
Nombre de salles d'eau 1
-
Nombre de toilettes 2
-
Nombre de parkings 1
-
Nombre de parkings couverts 1
-
Terrasse 1
-
Terrain piscinable 1
-
Jardin 1
-
Nombre d' étages 2
-
Nombre de niveaux 2
-
Annee construction 1992
Description
Mandat 177
Exclusivité Pietrapolis Ornex – Maison individuelle à Collonges !
En exclusivité, votre agence Pietrapolis Ornex vous présente cette charmante maison individuelle d’environ 104 m², idéalement située au cœur de Collonges, dans un environnement calme et résidentiel.
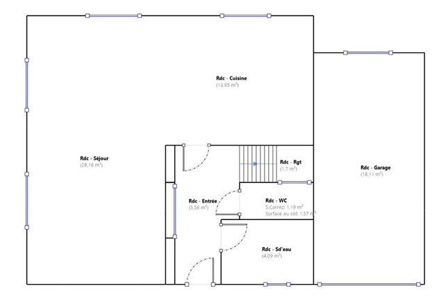
-Rez-de-chaussée :
• Entrée avec rangements,
• Cuisine ouverte sur une spacieuse salle à manger avec son poêle à bois et un salon/séjour lumineux, offrant un accès direct à la terrasse couverte par une pergola,
• Salle d’eau et WC indépendant.
-1er Étage :
• Trois chambres avec placards intégrés,
• Salle de bains,
• WC indépendant.
Extérieur :
• Terrain arboré d’environ 745 m², agrémenté d’un cerisier et d’un noyer,
• Terrasse exposée Sud/Ouest pour profiter pleinement du soleil,
• Garage fermé de 18m2 et abri à bois.
Cette maison bénéficie d’un emplacement privilégié, à proximité des commodités, des écoles et des axes autoroutiers, tout en offrant un cadre de vie paisible et verdoyant.
📞 Contactez dès maintenant :
Yan Thevenet
📱 06.71.70.05.25
📧 y.thevenet@pietrapolis.fr
En exclusivité, votre agence Pietrapolis Ornex vous présente cette charmante maison individuelle d’environ 104 m², idéalement située au cœur de Collonges, dans un environnement calme et résidentiel.
-Rez-de-chaussée :
• Entrée avec rangements,
• Cuisine ouverte sur une spacieuse salle à manger avec son poêle à bois et un salon/séjour lumineux, offrant un accès direct à la terrasse couverte par une pergola,
• Salle d’eau et WC indépendant.
-1er Étage :
• Trois chambres avec placards intégrés,
• Salle de bains,
• WC indépendant.
Extérieur :
• Terrain arboré d’environ 745 m², agrémenté d’un cerisier et d’un noyer,
• Terrasse exposée Sud/Ouest pour profiter pleinement du soleil,
• Garage fermé de 18m2 et abri à bois.
Cette maison bénéficie d’un emplacement privilégié, à proximité des commodités, des écoles et des axes autoroutiers, tout en offrant un cadre de vie paisible et verdoyant.
📞 Contactez dès maintenant :
Yan Thevenet
📱 06.71.70.05.25
📧 y.thevenet@pietrapolis.fr
Détail des pièces
- Entrée: 5.56 m²
- Cuisine: 13.95 m²
- Salon/séjour: 28.16 m²
- Wc: 1.19 m²
- Salle d'eau: 4.09 m²
- Dégagement: 4.08 m²
- Salle de bains: 4.53 m²
- Wc: 1.54 m²
- Chambre 1: 13.15 m²
- Chambre 2: 13.82 m²
- Chambre 3: 12.98 m²
Bilan sur les performances énergétiques du bien
E
Classe énergétique
E
293 kWh/m².an
Classe climatique
B
9 kg CO2/m².an
Estimation des coûts énergétiques annuels du logement
Entre 2200€ et 3020€ par an
Prix moyens de l'énergie indexés sur l'année 2023 (abonnements inclus)
Prix moyens de l'énergie indexés sur l'année 2023 (abonnements inclus)
Les informations sur les risques auxquels ce bien est exposé sont disponibles sur le site Géorisques : www.georisques.gouv.fr
Informations financières
Taxe foncière : 745 €
Ce bien vous intéresse ?
Laissez un message
Votre contact
THEVENET Yan
Ornex