Caractéristiques
-
Surface 136 m²
-
Surface habitable 136 m²
-
Surface sejour 31 m²
-
Nombre de pièces 5
-
Nombre de chambres 3
-
Nombre de salles de bain 1
-
Nombre de salles d'eau 1
-
Nombre de toilettes 2
-
Nombre de parkings couverts 1
-
Nombre d' étages 2
-
Nombre de niveaux 2
Description
Mandat 20911
Maison de ville 136m², 3 chambres dont 1 suite parentale avec dressing et salle d'eau, 1 bureau , un salon, une cuisine ouverte sur salle à manger, une salle de bain, 2 WC indépendants, garage, cave, buanderie, atelier, et puit privatif. Imaginez-vous vivre dans une cité Médiévale, dans une maison de ville élégante et lumineuse, répartie sur deux niveaux. Cette demeure, en parfait état, est prête à accueillir votre famille et à devenir le théâtre de vos plus beaux souvenirs.
Ne manquez pas cette opportunité unique de vous installer dans une maison de ville spacieuse et bien située au charme intemporel, alliant le charme de l'ancien au confort actuel. Contactez-moi dès aujourd'hui pour organiser une visite Marc 06.03.24.26.15
Ne manquez pas cette opportunité unique de vous installer dans une maison de ville spacieuse et bien située au charme intemporel, alliant le charme de l'ancien au confort actuel. Contactez-moi dès aujourd'hui pour organiser une visite Marc 06.03.24.26.15
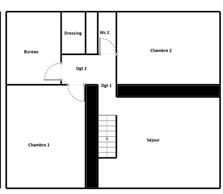
Détail des pièces
- HALL: 3.49 m²
- CUISINE SEJOUR: 30.28 m²
- SALLE DE BAINS: 6.9 m²
- WC: 1.26 m²
- SALON: 30.96 m²
- DEGAGEMENT: 4.43 m²
- CHAMBRE 1: 16.67 m²
- BUREAU: 14.07 m²
- DRESSING: 3.48 m²
- DEGAGEMENT: 2.13 m²
- WC: 2.12 m²
- SUITE PARENTALE CH+SDE: 17.58 m²
Bilan sur les performances énergétiques du bien
D
Date de réalisation : 28/05/2025Classe énergétique
D
244 kWh/m².an
Classe climatique
B
7 kg CO2/m².an
Estimation des coûts énergétiques annuels du logement
Entre 2510€ et 3440€ par an
Prix moyens de l'énergie indexés sur l'année 0 (abonnements inclus)
Prix moyens de l'énergie indexés sur l'année 0 (abonnements inclus)
Informations financières
Taxe foncière : 693 €
En copropriété
Nombre de lots : 2
Pas de procédures en cours
Biens similaires aux alentours
Ce bien vous intéresse ?
Laissez un message
Votre contact
FORNASARO Marc
Lyon 3