Caractéristiques
-
Surface 234 m²
-
Surface habitable 234 m²
-
Surface terrain 793 m²
-
Nombre de pièces 6
-
Nombre de salles d'eau 1
-
Nombre de toilettes 3
-
Nombre de parkings 5
-
Piscine Oui
-
Jardin 1
-
Nombre d' étages 1
-
Nombre de niveaux 1
Description
Mandat 21033
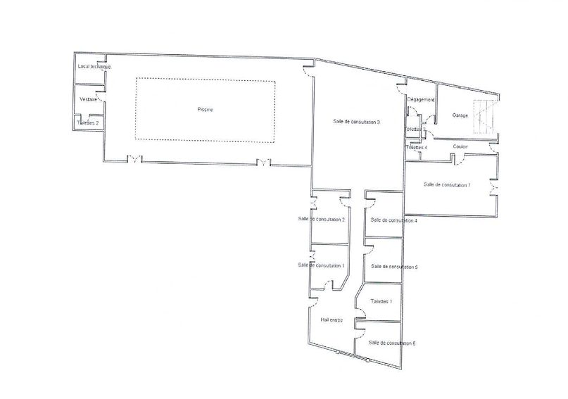
En exclusivité un ensemble immobilier situé au centre du village de Poncin 01450 de plain-pied sur une parcelle d'environ 793m²
Idéal pour les profession libérales, ce bien peut également être tranformé en habitation
Il se compose actuellement :
-d'un cabinet medical (anciennement exploité par un kinésithérapeute)
d'environ 103m² disposant d'une entrée, un wc, un dégagement, 4 salles de soins et une salle de sport
-d'une buanderie d'environ 6 m²
-d'un bureau avec accès indépendant d'environ 29m² se composant d'une entrée, un bureau, 1 WC
En annexe : Un garage, un espace détente d'environ 95m² avec piscine intérieure, vestiaires, local technique et Wc
Pour plus de renseignements, vous pouvez contacter, Audrey PILLOT au 0679126570 agent commercial RSAC 523 860 989
Idéal pour les profession libérales, ce bien peut également être tranformé en habitation
Il se compose actuellement :
-d'un cabinet medical (anciennement exploité par un kinésithérapeute)
d'environ 103m² disposant d'une entrée, un wc, un dégagement, 4 salles de soins et une salle de sport
-d'une buanderie d'environ 6 m²
-d'un bureau avec accès indépendant d'environ 29m² se composant d'une entrée, un bureau, 1 WC
En annexe : Un garage, un espace détente d'environ 95m² avec piscine intérieure, vestiaires, local technique et Wc
Pour plus de renseignements, vous pouvez contacter, Audrey PILLOT au 0679126570 agent commercial RSAC 523 860 989
Détail des pièces
- ENTREE, SALLE DE SOIN, SALLE DE SPORT LOT 1: 103.55 m²
- BUANDERIE LOT 2: 6.6 m²
- BUREAU ACCES INDEPENDANT LOT 4: 28.9 m²
- ESPACE DETENTE PISCINE VESTIAIRE ET LOCAL TECHNIQUE : 95 m²
Bilan sur les performances énergétiques du bien
D
Date de réalisation : 24/11/2024Classe énergétique
D
240 kWh/m².an
Classe climatique
B
6 kg CO2/m².an
Estimation des coûts énergétiques annuels du logement
Entre 1€ et 1€ par an
Prix moyens de l'énergie indexés sur l'année 0 (abonnements inclus)
Prix moyens de l'énergie indexés sur l'année 0 (abonnements inclus)
Informations financières
Taxe foncière : 2 400 €
En copropriété
Nombre de lots : 10
Pas de procédures en cours
Biens similaires aux alentours
Ce bien vous intéresse ?
Laissez un message
Votre contact
PILLOT Audrey
Lyon 3