Caractéristiques
-
Surface 249 m²
-
Surface habitable 249 m²
-
Surface terrain 8363 m²
-
Surface sejour 24 m²
-
Nombre de pièces 7
-
Nombre de chambres 6
-
Nombre de salles d'eau 2
-
Nombre de toilettes 2
-
Nombre de parkings 6
-
Nombre de parkings couverts 2
-
Terrasse 1
-
Terrain piscinable 1
-
Jardin 1
-
Nombre d' étages 2
-
Nombre de niveaux 2
Description
Mandat 205
A vendre propriété située à 5 minutes à pied du centre de Crémieu.. Cette maison bourgeoise, ayant conservé les matériaux de son histoire (cheminées, moulures, parquets chevron...), est adaptée à une famille multigénérationnelle, aux professions libérales, aux artisans, grâce à son espace indépendant au rez -de chaussée et stationnements facilitant l'accès à vos activités...
À l'étage, vous trouverez 205 m² habitables, ainsi que des combles aménageables.
De plus, sa parcelle constructible de 721 m² vous offre la possibilité d'ajouter un atelier, une habitation ou même une piscine
Le tout s'étend sur un parc arboré et fleuri de 8 363 m².
Au rez-de-chaussée : 199 m² au sol dont 1 appartement T2 indépendant de 44 m² avec possibilité d'agrandissement
-1 chambre de 19,90 m² lumineuse de plain-pied dans la rotonde vitrée avec accès au jardin
- 1 bureau : 10 m²
- 1 salle d'eau : 2,30 m²
- 1 WC indépendant : 1,66 m²
- Double garage avec deux portes : 30,33 m²
- 1 cellier : 19,76 m²
- 1buanderie : 13,90 m²
- 1 atelier : 38,47 m²
- 1chaufferie : 4,50 m²
- 2 caves de 7,25 m² et 19,77 m²
Au premier étage : 205 m² habitable
- 1 entrée: 8,53 m²
- 1 couloir 39,30 m²
- 1 cuisine : 17,39 m²
- 1 salle à manger avec accès à la terrasse : 23,67 m²
- 1 salon : 20,66 m²
- 5 grandes chambres allant de 14,45 m² à 21,78 m²
- 1 salle d'eau :5,59 m²
- 1 WC indépendant : 2,13 m²
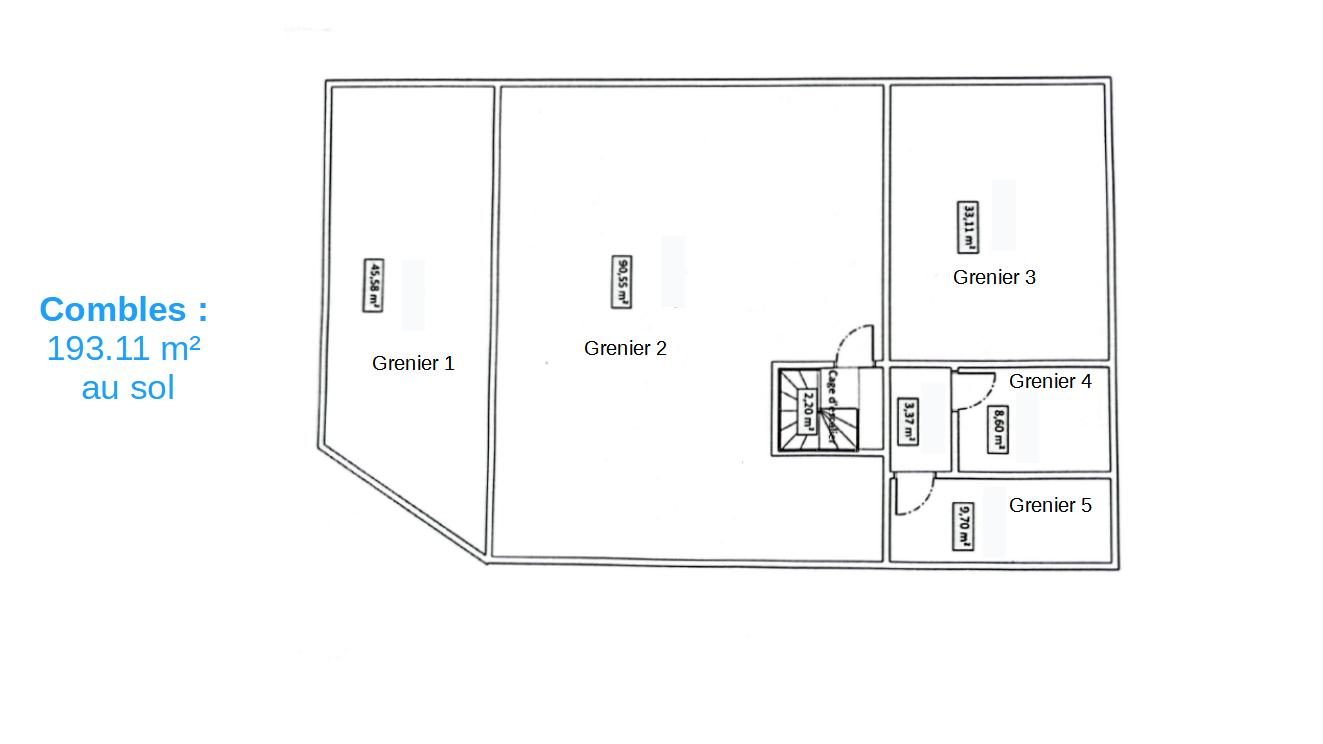
Combles : 193m² au sol avec possibilité d'aménagement avec une belle hauteur sous plafond et charpente apparente
Environnement :
- Parc arboré et fermé dont 721 m² constructibles/piscinable, jardin, poulailler et pré
- Secteur résidentiel
- Centre de Crémieu avec commerces et écoles/collèges : 5 minutes à pied
- Sur la voie verte Crémieu Morestel liaison avec la Viarhona
- Terrasses
- Grand carport
- Stationnements nombreux
Technique :
- Chauffage au bois (insert fermé) et au fioul (coût au réel/an 4 290€)
- Huisserie en bois avec double vitrage
- Volets en bois
- VMC simple flux
- Portail électrique
- Fibre Internet
- Assainissement tout à l'égout
Honoraires de l'agence à la charge vendeurs.
Venez visiter ce bien auprès de Sophie CELERIEN au 06 60 50 09 54 s.celerien@pietrapolis.fr (agent commercial RSAC 902132323).
À l'étage, vous trouverez 205 m² habitables, ainsi que des combles aménageables.
De plus, sa parcelle constructible de 721 m² vous offre la possibilité d'ajouter un atelier, une habitation ou même une piscine
Le tout s'étend sur un parc arboré et fleuri de 8 363 m².
Au rez-de-chaussée : 199 m² au sol dont 1 appartement T2 indépendant de 44 m² avec possibilité d'agrandissement
-1 chambre de 19,90 m² lumineuse de plain-pied dans la rotonde vitrée avec accès au jardin
- 1 bureau : 10 m²
- 1 salle d'eau : 2,30 m²
- 1 WC indépendant : 1,66 m²
- Double garage avec deux portes : 30,33 m²
- 1 cellier : 19,76 m²
- 1buanderie : 13,90 m²
- 1 atelier : 38,47 m²
- 1chaufferie : 4,50 m²
- 2 caves de 7,25 m² et 19,77 m²
Au premier étage : 205 m² habitable
- 1 entrée: 8,53 m²
- 1 couloir 39,30 m²
- 1 cuisine : 17,39 m²
- 1 salle à manger avec accès à la terrasse : 23,67 m²
- 1 salon : 20,66 m²
- 5 grandes chambres allant de 14,45 m² à 21,78 m²
- 1 salle d'eau :5,59 m²
- 1 WC indépendant : 2,13 m²
Combles : 193m² au sol avec possibilité d'aménagement avec une belle hauteur sous plafond et charpente apparente
Environnement :
- Parc arboré et fermé dont 721 m² constructibles/piscinable, jardin, poulailler et pré
- Secteur résidentiel
- Centre de Crémieu avec commerces et écoles/collèges : 5 minutes à pied
- Sur la voie verte Crémieu Morestel liaison avec la Viarhona
- Terrasses
- Grand carport
- Stationnements nombreux
Technique :
- Chauffage au bois (insert fermé) et au fioul (coût au réel/an 4 290€)
- Huisserie en bois avec double vitrage
- Volets en bois
- VMC simple flux
- Portail électrique
- Fibre Internet
- Assainissement tout à l'égout
Honoraires de l'agence à la charge vendeurs.
Venez visiter ce bien auprès de Sophie CELERIEN au 06 60 50 09 54 s.celerien@pietrapolis.fr (agent commercial RSAC 902132323).
Localisation et points d'intérêts
Bilan sur les performances énergétiques du bien
F
Classe énergétique
F
228 kWh/m².an
Logement à consommation d'énergie excessive
Classe climatique
F
70 kg CO2/m².an
Estimation des coûts énergétiques annuels du logement
Entre 7160€ et 9730€ par an
Prix moyens de l'énergie indexés sur l'année 0 (abonnements inclus)
Prix moyens de l'énergie indexés sur l'année 0 (abonnements inclus)
Les informations sur les risques auxquels ce bien est exposé sont disponibles sur le site Géorisques : www.georisques.gouv.fr
Informations financières
Taxe foncière : 2 980 €
Biens similaires aux alentours
Ce bien vous intéresse ?
Laissez un message
Votre contact
CELERIEN Sophie
Vienne