Caractéristiques
-
Surface 210 m²
-
Surface habitable 210 m²
-
Surface terrain 6705 m²
-
Nombre de pièces 7
-
Nombre de chambres 5
-
Nombre de salles de bain 1
-
Nombre de salles d'eau 1
-
Nombre de toilettes 2
-
Nombre de parkings couverts 1
-
Terrasse 1
-
Piscine Oui
-
Nombre d' étages 2
-
Nombre de niveaux 2
-
Annee construction 1900
Description
Mandat 301
PIETRAPOLIS Immobilier vous propose en exclusivité cette charmante maison ancienne de 7 pièces, alliant caractère et confort. Édifiée sur une vaste parcelle, de 6705 m² au total, dont environ 3 300 m² clos (le reste entretenu par des agriculteurs voisins), elle offre un cadre de vie paisible, idéal pour les amoureux de la campagne.
Terrain en zone N
Environnement:
- Vienne à 7 mins
- Arrêt de bus scolaire à proximité
- Ecole à 10 mins
- Commerces à 5 mins
L’habitation développe 210 m² habitables
• Un séjour lumineux
• Une cuisine aménagée et équipée
• Plusieurs chambres spacieuses
• Des espaces à aménager selon vos besoins (bureau, salle de jeux, etc.)
• Salle de bains et salle d’eau
Atouts supplémentaires :
• Belle rénovation
• Belle parcelle arborée avec partie clôturée
• Calme absolu, sans vis-à-vis
• Potentiel idéal pour une famille ou une résidence secondaire
Elle est composée :
Au Rez-de-chaussée:
- Salle à manger
- cuisine équipée indépendante
- salon
- Bureau
- Pièce de stockage
- Buanderie
- WC indépendant
- Placards
A l'étage:
- Un dégagement
- 4 grandes chambres
- Une suite parentale avec sa salle d'eau
- Grand placard
- salle de bain avec douche et baignoire
- WC indépendant
A l'extérieur
- Un garage indépendant
- Portail électrique
- Un espace pouvant servir de cuisine d'été
- Une piscine Desjoyau 8X4 récente
- Une belle terrasse pavée exposée Sud/Est
- Un terrasse avec pergola exposé Sud/Ouest
En complément
- Tout à l'égout
- Pompe à chaleur air/eau avec radiateurs en fonte
- Poêle à bois
- Menuiseries PVC double vitrage ( fenêtres oscillo-battantes)
- Volets roulants électriques centralisés et volets battants PVC
- Fibre optique
- Pompe pour récupération d'eau de la nappe phréatique
Taxe foncière: 1169€
Contactez Marion SCOUARNEC Agent commercial en Immobilier au 07 81 24 17 61 ou m.scouarnec@pietrapolis.fr
Terrain en zone N
Environnement:
- Vienne à 7 mins
- Arrêt de bus scolaire à proximité
- Ecole à 10 mins
- Commerces à 5 mins
L’habitation développe 210 m² habitables
• Un séjour lumineux
• Une cuisine aménagée et équipée
• Plusieurs chambres spacieuses
• Des espaces à aménager selon vos besoins (bureau, salle de jeux, etc.)
• Salle de bains et salle d’eau
Atouts supplémentaires :
• Belle rénovation
• Belle parcelle arborée avec partie clôturée
• Calme absolu, sans vis-à-vis
• Potentiel idéal pour une famille ou une résidence secondaire
Elle est composée :
Au Rez-de-chaussée:
- Salle à manger
- cuisine équipée indépendante
- salon
- Bureau
- Pièce de stockage
- Buanderie
- WC indépendant
- Placards
A l'étage:
- Un dégagement
- 4 grandes chambres
- Une suite parentale avec sa salle d'eau
- Grand placard
- salle de bain avec douche et baignoire
- WC indépendant
A l'extérieur
- Un garage indépendant
- Portail électrique
- Un espace pouvant servir de cuisine d'été
- Une piscine Desjoyau 8X4 récente
- Une belle terrasse pavée exposée Sud/Est
- Un terrasse avec pergola exposé Sud/Ouest
En complément
- Tout à l'égout
- Pompe à chaleur air/eau avec radiateurs en fonte
- Poêle à bois
- Menuiseries PVC double vitrage ( fenêtres oscillo-battantes)
- Volets roulants électriques centralisés et volets battants PVC
- Fibre optique
- Pompe pour récupération d'eau de la nappe phréatique
Taxe foncière: 1169€
Contactez Marion SCOUARNEC Agent commercial en Immobilier au 07 81 24 17 61 ou m.scouarnec@pietrapolis.fr
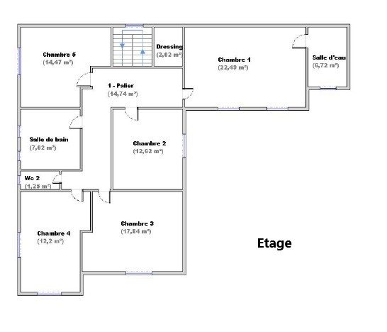
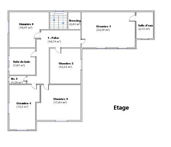
Détail des pièces
- Salle à manger: 23.89 m²
- Cuisine: 10.7 m²
- Salon: 16.63 m²
- Grand salon: 22.05 m²
- Bureau: 4.97 m²
- Buanderie + WC + Cellier: 20.56 m²
- Dégagement + Couloir: 14.74 m²
- Chambre parentale: 22.49 m²
- Salle d'eau parentale: 6.72 m²
- Chambre 2: 12.62 m²
- Chambre 3: 17.84 m²
- Salle de bain avec douche et baignoire: 7.02 m²
- Toilettes: 1.25 m²
- Chambre 4: 12.2 m²
- Chambre 5: 14.47 m²
Localisation et points d'intérêts
Bilan sur les performances énergétiques du bien
C
Date de réalisation : 21/07/2025Classe énergétique
C
159 kWh/m².an
Classe climatique
A
5 kg CO2/m².an
Estimation des coûts énergétiques annuels du logement
Entre 2150€ et 2890€ par an
Prix moyens de l'énergie indexés sur l'année 0 (abonnements inclus)
Prix moyens de l'énergie indexés sur l'année 0 (abonnements inclus)
Les informations sur les risques auxquels ce bien est exposé sont disponibles sur le site Géorisques : www.georisques.gouv.fr
Informations financières
Taxe foncière : 1 169 €
Biens similaires aux alentours
Exclusif
Maison - 7 pièces - 198 m²
38540 Saint-Just-Chaleyssin 610 000 €
Maison - 4 pièces - 190 m²
69970 Chaponnay 599 000 €
Prestige
Maison - 8 pièces - 204 m² - PRESTIGE
38200 Jardin 599 000 €
Exclusif
Sous-offre
Maison - 5 pièces - 130 m²
38370 Saint-Clair-du-Rhône 435 000 €
Exclusif
Sous-compromis
Maison - 7 pièces - 133 m²
38440 Saint-Jean-de-Bournay 495 000 €
Prestige
Maison - 5 pièces - 155 m² - PRESTIGE
38550 Le Péage-de-Roussillon 449 000 €
Exclusif
Maison - 5 pièces - 153 m²
69700 Beauvallon Chassagny 559 000 €
Exclusif
Sous-compromis
Maison - 6 pièces - 148 m²
38200 Jardin 449 000 €
Exclusif
Sous-offre
Maison - 7 pièces - 190 m²
38200 Vienne 550 000 €
Maison - 5 pièces - 139 m²
38200 Vienne 540 000 €Ce bien vous intéresse ?
Laissez un message
Votre contact
SCOUARNEC Marion
Vienne