Caractéristiques
-
Surface 178.25 m²
-
Surface habitable 178.25 m²
-
Surface terrain 1100 m²
-
Surface sejour 40 m²
-
Nombre de pièces 7
-
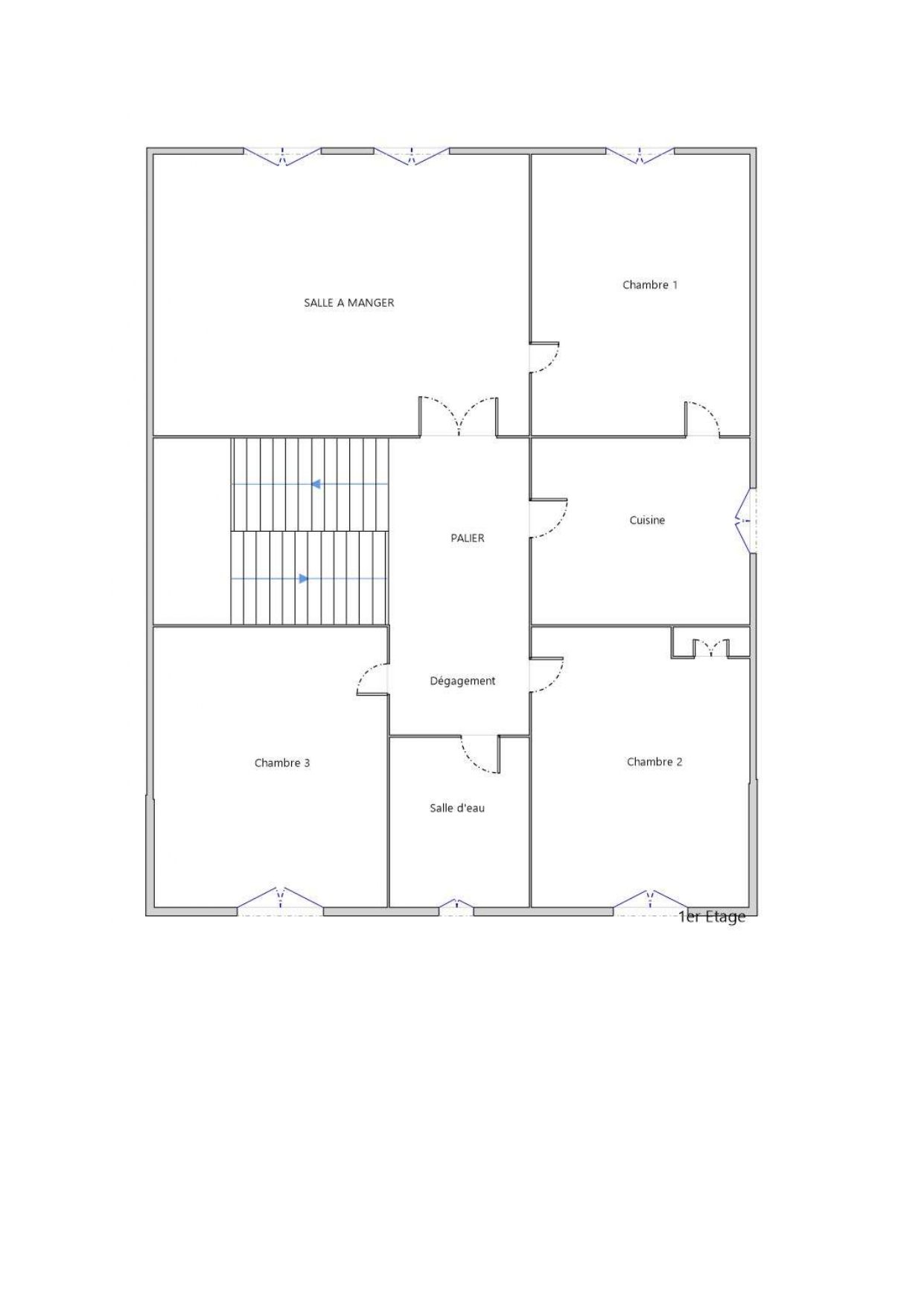
Nombre de chambres 4
-
Nombre de salles d'eau 1
-
Nombre de toilettes 2
-
Nombre de parkings 4
-
Terrain piscinable 1
-
Jardin 1
-
Nombre d' étages 2
-
Nombre de niveaux 2
-
Annee construction 1950
-
Digicode Oui
Description
Mandat 21058
À vendre à Grigny, dans la rue Jules Ferry, maison individuelle des années 1950 présentant un fort potentiel après travaux.
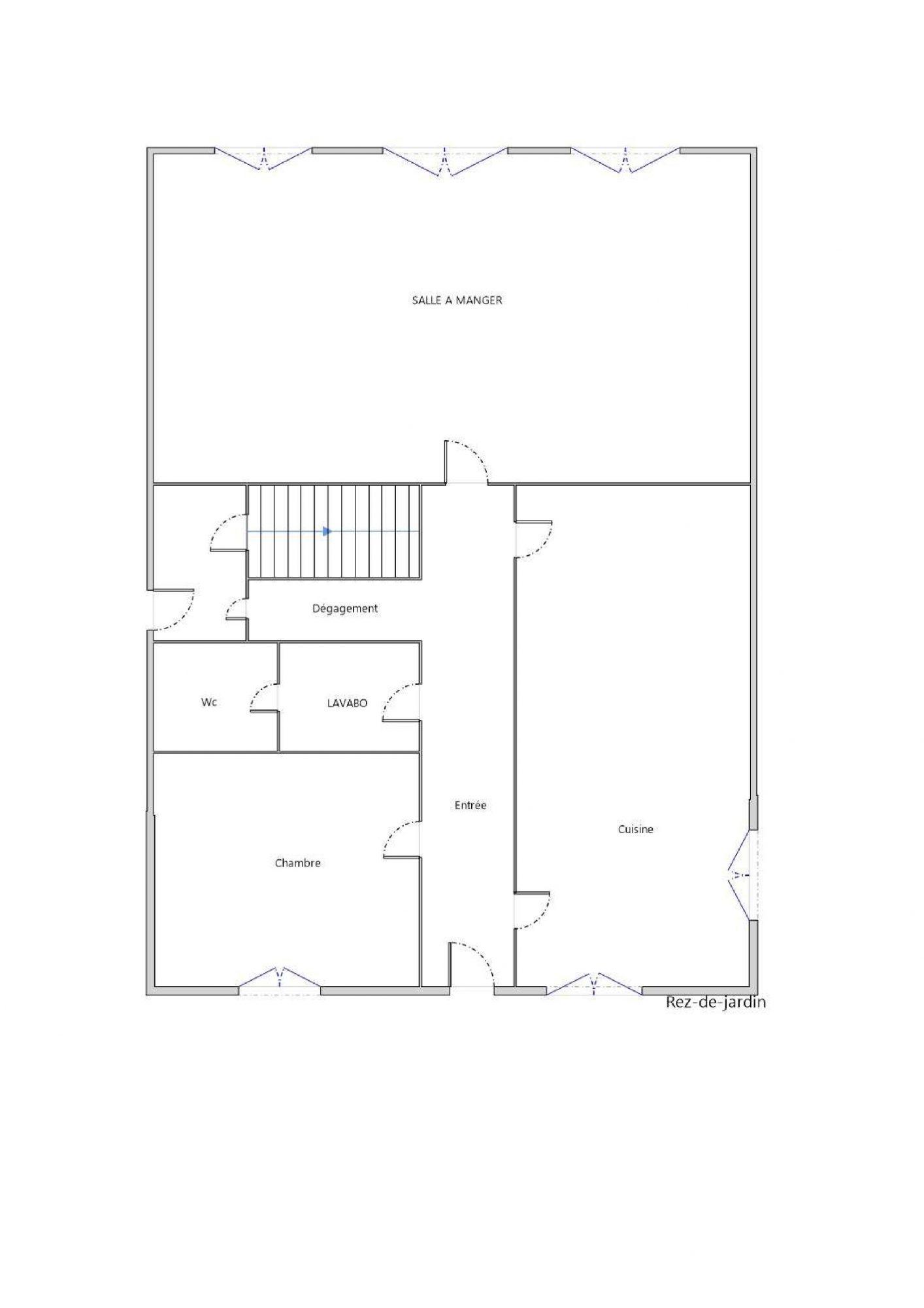
Elle offre une surface habitable de 178 m², + un sous-sol de 40 m². Le terrain de 1 100 m² est plat et offre la possibilité d’installer une piscine.
La maison comprend deux grands salons modulables, facilement transformables en espaces supplémentaires, ainsi que quatre chambres existantes. Les pièces bénéficient de volumes généreux avec une hauteur sous plafond de 3,30 m. Le chauffage est au gaz récent et la toiture a été isolée il y a environ trois ans.
L’extérieur permet de garer aisément 4 à 5 véhicules. La maison se situe dans un environnement calme, à proximité des commodités. La rue Jules Ferry est bien desservie avec les lignes de bus 78 et 80, et la gare de Givors-Ville se trouve à quelques minutes à pied.
Un droit de passage est présent avec la maison en fond de parcelle, mais peut facilement être clôturé pour assurer une totale indépendance.
Des travaux de rénovation sont nécessaires pour exploiter pleinement le potentiel de ce bien au caractère affirmé, idéal pour un projet familial, un investissement ou une remise au goût du jour.
Historiquement, la maison accueillait un café-restaurant réputé et le jardin abritait un petit théâtre en plein air, le “Clos des Amis”, qui a longtemps animé le quartier.
Informations complémentaires : bien situé hors copropriété, honoraires à la charge du vendeur.
DPE : E, audit énergétique réalisé.
Pour plus d'informations ou pour organiser une visite, contactez Sébastien VERNIERE
006 64 85 51 202 – s.verniere@pietrapolis.fr – EI – agent commercial – RSAC 914 067 608
Estimation GRATUITE !
Agence immobilière enregistrée RCP de Lyon sous le N 424 902 2- N° Carte professionnelle N° 6901 2016 000 003 981.
Les informations sur les risques auxquels ce bien est exposé sont disponibles sur le site Géorisques. www.georisques.gouv.fr
Elle offre une surface habitable de 178 m², + un sous-sol de 40 m². Le terrain de 1 100 m² est plat et offre la possibilité d’installer une piscine.
La maison comprend deux grands salons modulables, facilement transformables en espaces supplémentaires, ainsi que quatre chambres existantes. Les pièces bénéficient de volumes généreux avec une hauteur sous plafond de 3,30 m. Le chauffage est au gaz récent et la toiture a été isolée il y a environ trois ans.
L’extérieur permet de garer aisément 4 à 5 véhicules. La maison se situe dans un environnement calme, à proximité des commodités. La rue Jules Ferry est bien desservie avec les lignes de bus 78 et 80, et la gare de Givors-Ville se trouve à quelques minutes à pied.
Un droit de passage est présent avec la maison en fond de parcelle, mais peut facilement être clôturé pour assurer une totale indépendance.
Des travaux de rénovation sont nécessaires pour exploiter pleinement le potentiel de ce bien au caractère affirmé, idéal pour un projet familial, un investissement ou une remise au goût du jour.
Historiquement, la maison accueillait un café-restaurant réputé et le jardin abritait un petit théâtre en plein air, le “Clos des Amis”, qui a longtemps animé le quartier.
Informations complémentaires : bien situé hors copropriété, honoraires à la charge du vendeur.
DPE : E, audit énergétique réalisé.
Pour plus d'informations ou pour organiser une visite, contactez Sébastien VERNIERE
006 64 85 51 202 – s.verniere@pietrapolis.fr – EI – agent commercial – RSAC 914 067 608
Estimation GRATUITE !
Agence immobilière enregistrée RCP de Lyon sous le N 424 902 2- N° Carte professionnelle N° 6901 2016 000 003 981.
Les informations sur les risques auxquels ce bien est exposé sont disponibles sur le site Géorisques. www.georisques.gouv.fr
Bilan sur les performances énergétiques du bien
E
Date de réalisation : 14/09/2025Classe énergétique
E
315 kWh/m².an
Classe climatique
E
69 kg CO2/m².an
Estimation des coûts énergétiques annuels du logement
Entre 4700€ et 6500€ par an
Prix moyens de l'énergie indexés sur l'année 0 (abonnements inclus)
Prix moyens de l'énergie indexés sur l'année 0 (abonnements inclus)
Informations financières
Taxe foncière : 2 375 €
Biens similaires aux alentours
Exclusif
Maison - 7 pièces - 178 m²
69700 Givors 312 000 €
Exclusif
Maison - 5 pièces - 108 m²
69360 Saint Symphorien d'Ozon 365 000 €
Exclusif
Maison - 4 pièces - 104 m²
69230 Saint-Genis-Laval 350 000 €
Exclusif
Maison - 7 pièces - 148 m²
38780 Pont-Évêque 250 000 €
Exclusif
Maison - 4 pièces - 137 m²
69700 Givors 325 000 €
Exclusif
Maison - 5 pièces - 135 m²
42410 Vérin 345 000 €
Exclusif
Maison - 6 pièces - 145 m²
69390 Millery 315 000 €
Maison - 5 pièces - 99 m²
38200 Vienne 330 000 €
Exclusif
Maison - 4 pièces - 170 m²
38780 Pont-Évêque 275 000 €
Exclusif
Maison - 3 pièces - 70 m²
69390 Vernaison 281 000 €Ce bien vous intéresse ?
Laissez un message
Votre contact
VERNIERE Sébastien
Lyon 3