Caractéristiques
-
Surface 66.96 m²
-
Surface carrez 66.96 m²
-
Surface sejour 26 m²
-
Nombre de pièces 3
-
Nombre de chambres 2
-
Nombre de salles de bain 1
-
Nombre de toilettes 1
-
Nombre de parkings couverts 1
-
Terrasse 1
-
Accessible pmr Oui
-
Annee construction 2022
-
Ascenseur Oui
Description
Mandat 181
NOUVEAUTE, en exclusivité, PIETRAPOLIS Ornex vous propose cet appartement T3 d'environ 67m2 avec garage situé à Cessy,
Il se compose comme suit :
• Hall d'entrée avec placards intégrés
• Un salon / séjour de 26 m² avec une cuisine américaine intégralement équipée donnant accès à une terrasse d'environ 45m2 avec vue Mont Blanc,
• Deux chambres avec placard,
• Une salle de bains et un W.-C. indépendant,
• Un garage électrique complète ce bien.
Cet appartement est situé au rez-de-chaussée.
Il se trouve dans un secteur prisé de Cessy, à proximité des écoles, des transports et du centre-ville.
Possibilité d'acquérir deux garages en supplément. (Pour le prix, nous consulter)
Pas de procédure en cours.
Pour toute information complémentaire ou pour organiser une visite, n’hésitez pas à me contacter.
Léo JURJEVIC - 0618756780 - l.jurjevic@pietrapolis.fr
Il se compose comme suit :
• Hall d'entrée avec placards intégrés
• Un salon / séjour de 26 m² avec une cuisine américaine intégralement équipée donnant accès à une terrasse d'environ 45m2 avec vue Mont Blanc,
• Deux chambres avec placard,
• Une salle de bains et un W.-C. indépendant,
• Un garage électrique complète ce bien.
Cet appartement est situé au rez-de-chaussée.
Il se trouve dans un secteur prisé de Cessy, à proximité des écoles, des transports et du centre-ville.
Possibilité d'acquérir deux garages en supplément. (Pour le prix, nous consulter)
Pas de procédure en cours.
Pour toute information complémentaire ou pour organiser une visite, n’hésitez pas à me contacter.
Léo JURJEVIC - 0618756780 - l.jurjevic@pietrapolis.fr
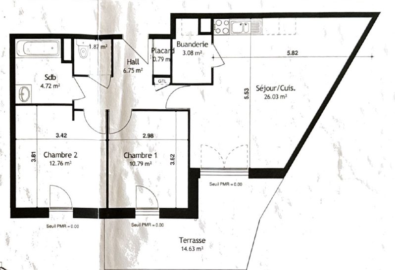
Détail des pièces
- Hall: 5.91 m²
- Séjour/Cuisine: 27.23 m²
- Chambre 1: 10.64 m²
- Chambre 2: 13.03 m²
- Salle de bains: 4.67 m²
- WC: 1.75 m²
- Buanderie: 2.81 m²
- Placard: 0.92 m²
Bilan sur les performances énergétiques du bien
C
Date de réalisation : 13/11/2025Classe énergétique
C
87 kWh/m².an
Classe climatique
C
15 kg CO2/m².an
Estimation des coûts énergétiques annuels du logement
Entre 650€ et 950€ par an
Prix moyens de l'énergie indexés sur l'année 0 (abonnements inclus)
Prix moyens de l'énergie indexés sur l'année 0 (abonnements inclus)
Les informations sur les risques auxquels ce bien est exposé sont disponibles sur le site Géorisques : www.georisques.gouv.fr
Informations financières
Taxe foncière : 700 €
Charges mensuelles : 124 €
En copropriété
Nombre de lots : 267
Pas de procédures en cours
Biens similaires aux alentours
Ce bien vous intéresse ?
Laissez un message
Votre contact
Jurjevic Leo
Ornex