Caractéristiques
-
Surface 69.48 m²
-
Surface carrez 69.48 m²
-
Surface sejour 34 m²
-
Surface balcon 11 m²
-
Nombre de pièces 3
-
Nombre de chambres 2
-
Nombre de salles de bain 1
-
Nombre de toilettes 1
-
Nombre de parkings couverts 1
-
Chauffage collectif Collectif
-
Etage 3
-
Annee construction 2008
-
Ascenseur Oui
Description
Mandat 21093
Sur le plateau de la Duchère, rue Arthur Rimbaud, venez visiter ce bel appartement en excellent état au 3ème étage avec Loggia dans une résidence récente de 2008.
Une grande entrée avec placard vous accueille et donne accès directement au salon-séjour ainsi que la cuisine ouverte pour un espace de près de 35 m², complété par une loggia de plus de 10 m² pour profiter des beaux jours.
Côté nuit, vous disposerez de deux belles chambres en parquet dont l'une avec placard, une salle de bains et un sanitaire séparé.
Pour plus de confort de déplacement au quotidien pourrez acquérir un garage en sous-sol en supplément pour 15 000€.
Pour visiter ce bien, contactez Mikaël Fernandes au 06 89 23 19 67 ou via m.fernandes@pietrapolis.fr
DPE : C : 155 kWhEP/m².an
GES : C : 13 kg CO²/m.an
Charges de copropriété : 252€ / Mois incluant le chauffage ainsi que l'eau chaude et froide
Taxe Foncière : 1 045€ / an
Une grande entrée avec placard vous accueille et donne accès directement au salon-séjour ainsi que la cuisine ouverte pour un espace de près de 35 m², complété par une loggia de plus de 10 m² pour profiter des beaux jours.
Côté nuit, vous disposerez de deux belles chambres en parquet dont l'une avec placard, une salle de bains et un sanitaire séparé.
Pour plus de confort de déplacement au quotidien pourrez acquérir un garage en sous-sol en supplément pour 15 000€.
Pour visiter ce bien, contactez Mikaël Fernandes au 06 89 23 19 67 ou via m.fernandes@pietrapolis.fr
DPE : C : 155 kWhEP/m².an
GES : C : 13 kg CO²/m.an
Charges de copropriété : 252€ / Mois incluant le chauffage ainsi que l'eau chaude et froide
Taxe Foncière : 1 045€ / an
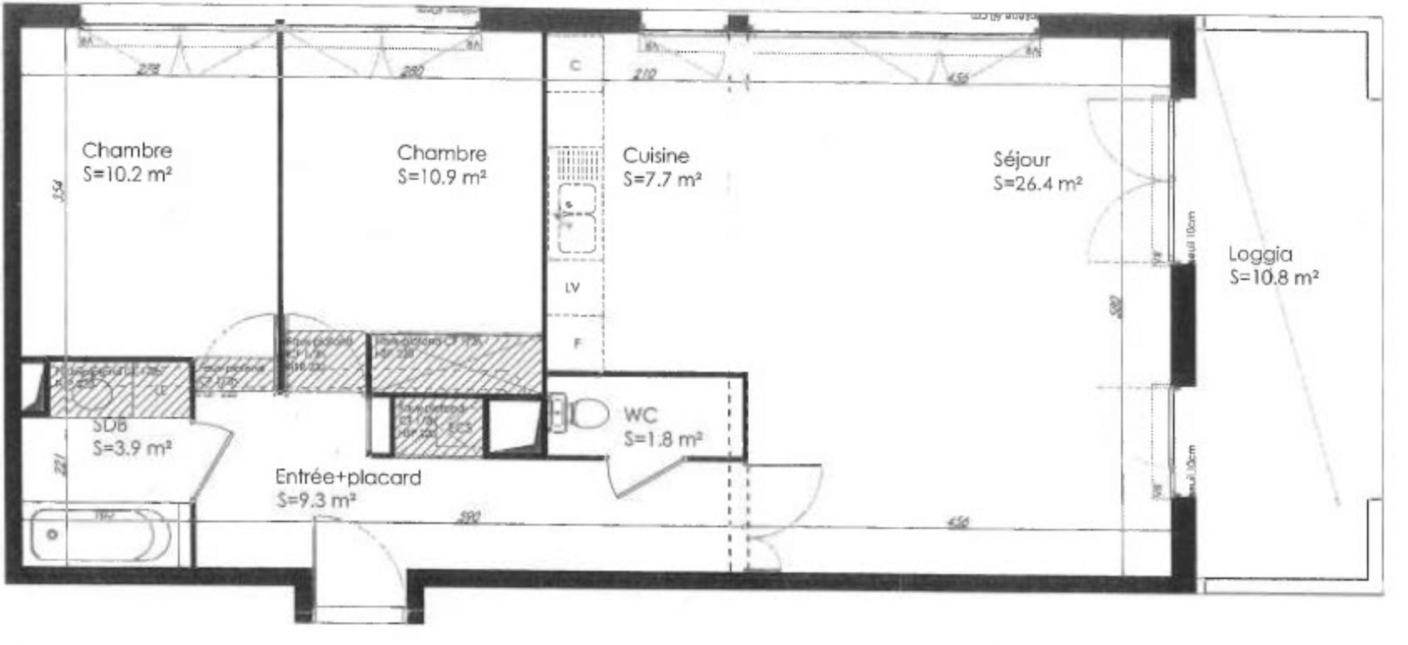
Détail des pièces
- Entrée: 9.3 m²
- Salon séjour et cuisine ouverte: 34.1 m²
- Chambre 1: 10.9 m²
- Chambre 2: 10.2 m²
- Salle de bains: 3.9 m²
- Sanitaires: 1.8 m²
Bilan sur les performances énergétiques du bien
C
Date de réalisation : 09/12/2024Classe énergétique
C
155 kWh/m².an
Classe climatique
C
13 kg CO2/m².an
Estimation des coûts énergétiques annuels du logement
Entre 870€ et 1240€ par an
Prix moyens de l'énergie indexés sur l'année 0 (abonnements inclus)
Prix moyens de l'énergie indexés sur l'année 0 (abonnements inclus)
Les informations sur les risques auxquels ce bien est exposé sont disponibles sur le site Géorisques : www.georisques.gouv.fr
Informations financières
Taxe foncière : 1 045 €
Charges mensuelles : 252 €
En copropriété
Nombre de lots : 78
Quote part : 3 024 € des charges annuelles du lot vendu.
Pas de procédures en cours
Biens similaires aux alentours
Appartement - 3 pièces - 80 m²
69230 Saint-Genis-Laval 199 000 €
Exclusif
Appartement - 2 pièces - 35 m²
69006 Lyon 185 000 €
Exclusif
Sous-offre
Appartement - 3 pièces - 64 m²
69200 Vénissieux 160 000 €
Exclusif
Appartement - 4 pièces - 79 m²
69150 Décines-Charpieu 195 000 €
Exclusif
Appartement - 2 pièces - 37 m²
69007 Lyon 202 000 €
Exclusif
Appartement - 2 pièces - 56 m²
69008 Lyon 140 000 €
Exclusif
Appartement - 4 pièces - 113 m²
69140 Rillieux-la-Pape 165 000 €
Exclusif
Sous-compromis
Appartement - 4 pièces - 69 m²
69600 Oullins 189 500 €
Exclusif
Appartement - 4 pièces - 67 m²
69100 Villeurbanne 170 000 €
Appartement - 4 pièces - 79 m²
69200 Vénissieux 199 000 €Ce bien vous intéresse ?
Laissez un message
Votre contact
FERNANDES Mikaël
Lyon 7