Caractéristiques
-
Surface 79.59 m²
-
Surface carrez 79.59 m²
-
Surface sejour 26 m²
-
Nombre de pièces 4
-
Nombre de chambres 3
-
Nombre de salles d'eau 1
-
Nombre de toilettes 1
-
Nombre de parkings 1
-
Chauffage collectif Collectif
-
Etage 1
-
Annee construction 1968
Description
Mandat 21111
Appartement T4 de 79,59 m² avec vue verdoyante, cave et place de stationnement
Découvrez ce magnifique appartement T4 de 79,59 m², situé au 1er étage d'un immeuble de 4 étages construit en 1968. Cet appartement, en excellent état, vous offre une vue verdoyante et une exposition sud, idéale pour profiter de la lumière naturelle tout au long de la journée.
Avec ses 3 chambres spacieuses, son séjour de 26 m², sa cuisine américaine aménagée et ses ouvertures en PVC à double vitrage, cet appartement allie confort et modernité. La salle d'eau et le WC indépendant complètent parfaitement cet espace de vie.
Profitez d'une cave de 10 m² pour ranger vos affaires et d'un stationnement extérieur pour votre véhicule. L'appartement est éligible à l'internet haut débit et à la fibre, vous garantissant une connexion optimale.
Les prestations sont de qualité :
Les huisseries ont été changées en 2022, le tableau électrique en 2019, les radiateurs en 2010, la cuisine a été refaite en 2017 et la salle de douche en 2015.
Vous n'aurez plus qu'à poser vos meubles !
Situé à proximité de plusieurs commodités, vous trouverez à 5 minutes à pied un restaurant et à 15 minutes à pied plusieurs crèches, écoles maternelles, écoles élémentaires, un collège, des magasins d'alimentation générale, des parcs et jardins, ainsi que des médecins généralistes. Les transports en commun sont également bien desservis avec un bus à 5 minutes à pied, un tramway à 15 minutes à pied et un métro à 10 minutes en voiture.
Alors n'attendez pas...
Contact :
Alice DEPARCY au 06.83.79.26.98 ou a.deparcy@pietrapolis.fr
Agent commercial / RSAC : 831 395 98
Découvrez ce magnifique appartement T4 de 79,59 m², situé au 1er étage d'un immeuble de 4 étages construit en 1968. Cet appartement, en excellent état, vous offre une vue verdoyante et une exposition sud, idéale pour profiter de la lumière naturelle tout au long de la journée.
Avec ses 3 chambres spacieuses, son séjour de 26 m², sa cuisine américaine aménagée et ses ouvertures en PVC à double vitrage, cet appartement allie confort et modernité. La salle d'eau et le WC indépendant complètent parfaitement cet espace de vie.
Profitez d'une cave de 10 m² pour ranger vos affaires et d'un stationnement extérieur pour votre véhicule. L'appartement est éligible à l'internet haut débit et à la fibre, vous garantissant une connexion optimale.
Les prestations sont de qualité :
Les huisseries ont été changées en 2022, le tableau électrique en 2019, les radiateurs en 2010, la cuisine a été refaite en 2017 et la salle de douche en 2015.
Vous n'aurez plus qu'à poser vos meubles !
Situé à proximité de plusieurs commodités, vous trouverez à 5 minutes à pied un restaurant et à 15 minutes à pied plusieurs crèches, écoles maternelles, écoles élémentaires, un collège, des magasins d'alimentation générale, des parcs et jardins, ainsi que des médecins généralistes. Les transports en commun sont également bien desservis avec un bus à 5 minutes à pied, un tramway à 15 minutes à pied et un métro à 10 minutes en voiture.
Alors n'attendez pas...
Contact :
Alice DEPARCY au 06.83.79.26.98 ou a.deparcy@pietrapolis.fr
Agent commercial / RSAC : 831 395 98
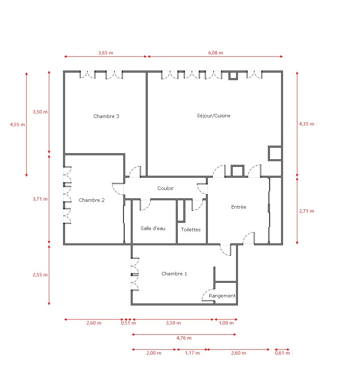
Détail des pièces
- ENTREE: 8.68 m²
- CHAMBRE 1: 10.61 m²
- RANGEMENT: 1.09 m²
- COULOIR: 3.98 m²
- WC: 1.62 m²
- SALLE DE DOUCHE: 3.2 m²
- CHAMBRE 2: 10.51 m²
- CHAMBRE 3: 14.01 m²
- SALON SEJOUR CUISINE: 25.89 m²
Bilan sur les performances énergétiques du bien
E
Date de réalisation : 21/10/2025Classe énergétique
E
271 kWh/m².an
Classe climatique
D
47 kg CO2/m².an
Estimation des coûts énergétiques annuels du logement
Entre 1780€ et 2450€ par an
Prix moyens de l'énergie indexés sur l'année 0 (abonnements inclus)
Prix moyens de l'énergie indexés sur l'année 0 (abonnements inclus)
Informations financières
Taxe foncière : 1 055 €
Charges mensuelles : 219 €
En copropriété
Nombre de lots : 177
Pas de procédures en cours
Biens similaires aux alentours
Exclusif
Appartement - 3 pièces - 80 m²
69230 Saint-Genis-Laval 199 000 €
Exclusif
Appartement - 3 pièces - 64 m²
69150 Décines-Charpieu 199 000 €
Appartement - 3 pièces - 41 m²
69100 Villeurbanne 169 000 €
Exclusif
Appartement - 3 pièces - 57 m²
69110 Sainte-Foy-lès-Lyon 205 000 €
Appartement - 3 pièces - 100 m²
01390 Civrieux 199 000 €
Exclusif
Appartement - 3 pièces - 61 m²
69120 Vaulx-en-Velin 190 000 €
Appartement - 3 pièces - 69 m²
69009 Lyon 175 000 €
Exclusif
Appartement - 3 pièces - 65 m²
69100 Villeurbanne 225 000 €
Appartement - 3 pièces - 80 m²
69100 Villeurbanne 220 000 €
Exclusif
Sous-compromis
Appartement - 3 pièces - 64 m²
69200 Vénissieux 160 000 €Ce bien vous intéresse ?
Laissez un message
Votre contact
DEPARCY Alice
Lyon 3