Caractéristiques
-
Surface 89.7 m²
-
Surface carrez 89.7 m²
-
Surface sejour 36 m²
-
Nombre de pièces 5
-
Nombre de chambres 3
-
Nombre de salles de bain 1
-
Nombre de salles d'eau 1
-
Nombre de toilettes 2
-
Nombre de parkings 1
-
Nombre de parkings couverts 1
-
Jardin 1
-
Annee construction 2021
Description
Mandat 6521
BELLEVILLE EN BEAUJOLAIS : Duplex familial par excellence construit en 2022 - DPE C - sous garanties décennales
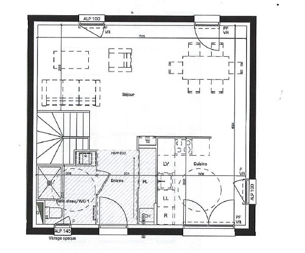
Au RDC = entrée avec grand placard qui distribue la pièce de vie claire et lumineuse, avec son accès vers le jardin arrière de la maison .
La cuisine en espace séparé est aménagée et partiellement équipée. Elle profite d'une sortie directe sur une terrasse possible à l'avant de la maison
Un toilette et salle d'eau finalisent le rez-de-chaussée.
A l'étage = 3 chambres toutes aménagées de placards muraux - une salle de bains et un toilette séparée
Votre voiture sera à l'abri sous le carport couvert à l'avant du logement avec possibilité de garer un deuxième véhicule.
Et pour finir vous aurez tout loisir de ranger vos vélos, tondeuse, coussins de terrasse dans l'abri de jardin fermé.
Duplex équipé de volets électriques - carrelage au rez-de-chaussée et parquet dans les chambres.
Petite copropriété familiale au calme, de seulement 11 lots avec une impasse privée fermée d'un portail motorisé, permettant à vos enfants de faire du vélo en sécurité.
L'ensemble est proche de toutes les commodités qu'offre Belleville en Beaujolais
Je vous invite à m'appeler ou m'écrire, pour programmer la visite de cette maison qu'il ne s'agit pas de manquer. Virginia VANETTI : 06.12.58.78.21 ou v.vanetti@pietrapolis.fr
www.pietrapolis.fr/virginia.vanetti
Agent commercial 503301772 RSAC Villefranche Tarare
Au RDC = entrée avec grand placard qui distribue la pièce de vie claire et lumineuse, avec son accès vers le jardin arrière de la maison .
La cuisine en espace séparé est aménagée et partiellement équipée. Elle profite d'une sortie directe sur une terrasse possible à l'avant de la maison
Un toilette et salle d'eau finalisent le rez-de-chaussée.
A l'étage = 3 chambres toutes aménagées de placards muraux - une salle de bains et un toilette séparée
Votre voiture sera à l'abri sous le carport couvert à l'avant du logement avec possibilité de garer un deuxième véhicule.
Et pour finir vous aurez tout loisir de ranger vos vélos, tondeuse, coussins de terrasse dans l'abri de jardin fermé.
Duplex équipé de volets électriques - carrelage au rez-de-chaussée et parquet dans les chambres.
Petite copropriété familiale au calme, de seulement 11 lots avec une impasse privée fermée d'un portail motorisé, permettant à vos enfants de faire du vélo en sécurité.
L'ensemble est proche de toutes les commodités qu'offre Belleville en Beaujolais
Je vous invite à m'appeler ou m'écrire, pour programmer la visite de cette maison qu'il ne s'agit pas de manquer. Virginia VANETTI : 06.12.58.78.21 ou v.vanetti@pietrapolis.fr
www.pietrapolis.fr/virginia.vanetti
Agent commercial 503301772 RSAC Villefranche Tarare
Bilan sur les performances énergétiques du bien
C
Date de réalisation : 30/11/2022Classe énergétique
C
66 kWh/m².an
Classe climatique
C
12 kg CO2/m².an
Estimation des coûts énergétiques annuels du logement
Entre 578€ et 782€ par an
Prix moyens de l'énergie indexés sur l'année 2023 (abonnements inclus)
Prix moyens de l'énergie indexés sur l'année 2023 (abonnements inclus)
Les informations sur les risques auxquels ce bien est exposé sont disponibles sur le site Géorisques : www.georisques.gouv.fr
En copropriété
Nombre de lots : 11
Quote part : 500 € des charges annuelles du lot vendu.
Pas de procédures en cours
Biens similaires aux alentours
Exclusif
Appartement - 4 pièces - 91 m²
69400 Villefranche-sur-Saône 225 000 €
Appartement - 4 pièces - 69 m²
69400 Villefranche-sur-Saône 249 000 €
Exclusif
Appartement - 5 pièces - 125 m²
69220 Belleville-en-Beaujolais 268 000 €
Exclusif
Appartement - 4 pièces - 91 m²
69400 Villefranche-sur-Saône 229 000 €
Exclusif
Appartement - 4 pièces - 132 m²
69220 Belleville-en-Beaujolais 285 000 €Ce bien vous intéresse ?
Laissez un message
Votre contact
VANETTI Virginia
Villefranche-sur-Saône