Caractéristiques
-
Surface 125 m²
-
Surface carrez 125 m²
-
Surface sejour 35 m²
-
Nombre de pièces 5
-
Nombre de chambres 3
-
Nombre de salles de bain 1
-
Nombre de toilettes 2
-
Nombre de parkings 2
-
Terrasse 1
-
Chauffage collectif Collectif
Description
Mandat 572
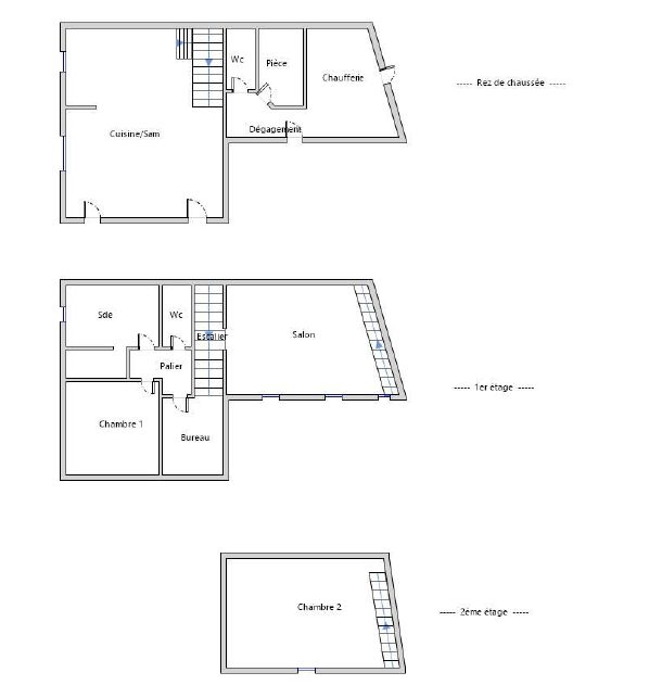
SAINT LAGER : duplex 3 chambres, grande pièce de vie entièrement rénovée - moins de 5 mn de la gare de Belleville - Terrasse - parking avec la possibilité d'aménager une partie, en jardin - DPE C
Découvrez cette magnifique habitation rénovée avec goût et idéalement située .
Au RDC : pièce de vie sublimée d'une très belle cuisine avec accès direct à la terrasse coté sud
Buanderie - rangement et toilette
Demi niveau supérieur : salon chaleureux et cozy, qui permet d'accéder à un niveau supérieur actuellement dressing mais pouvant redevenir chambre
Etage : 2 chambres - 1 salle de bain avec douche et baignoire balnéo.
Toilette nuit séparé
Les +++++ : Matériaux de qualités pour cette rénovation complète - DPE C
Chauffage central au gaz de ville : chaudière neuve de 2023 - climatisation réversible installée en juin 2024 - volets roulants électriques 2021 - cave sous la terrasse - nombreux rangements
Taxe Foncière 480€ /an
Gaz/EDF : env. 160€/mois
Espace terrain actuellement utilisé en parking mais qui peut, en partie, devenir jardin vert.
Commerces immédiatement accessibles, tout comme la gare de Belleville à moins de 5 mn en voiture
Environnement calme.
Je reste à votre écoute et à votre disposition pour tout renseignement complémentaire ou visite
Virginia VANETTI : 06.12.58.78.21 ou v.vanetti@pietrapolis.fr
www.villefranche.pietrapolis.fr
Agent commercial 503301772 RSAC Villefranche
Découvrez cette magnifique habitation rénovée avec goût et idéalement située .
Au RDC : pièce de vie sublimée d'une très belle cuisine avec accès direct à la terrasse coté sud
Buanderie - rangement et toilette
Demi niveau supérieur : salon chaleureux et cozy, qui permet d'accéder à un niveau supérieur actuellement dressing mais pouvant redevenir chambre
Etage : 2 chambres - 1 salle de bain avec douche et baignoire balnéo.
Toilette nuit séparé
Les +++++ : Matériaux de qualités pour cette rénovation complète - DPE C
Chauffage central au gaz de ville : chaudière neuve de 2023 - climatisation réversible installée en juin 2024 - volets roulants électriques 2021 - cave sous la terrasse - nombreux rangements
Taxe Foncière 480€ /an
Gaz/EDF : env. 160€/mois
Espace terrain actuellement utilisé en parking mais qui peut, en partie, devenir jardin vert.
Commerces immédiatement accessibles, tout comme la gare de Belleville à moins de 5 mn en voiture
Environnement calme.
Je reste à votre écoute et à votre disposition pour tout renseignement complémentaire ou visite
Virginia VANETTI : 06.12.58.78.21 ou v.vanetti@pietrapolis.fr
www.villefranche.pietrapolis.fr
Agent commercial 503301772 RSAC Villefranche
Bilan sur les performances énergétiques du bien
C
Date de réalisation : 17/07/2025Classe énergétique
C
140 kWh/m².an
Classe climatique
C
23 kg CO2/m².an
Estimation des coûts énergétiques annuels du logement
Entre 1330€ et 1870€ par an
Prix moyens de l'énergie indexés sur l'année 0 (abonnements inclus)
Prix moyens de l'énergie indexés sur l'année 0 (abonnements inclus)
Les informations sur les risques auxquels ce bien est exposé sont disponibles sur le site Géorisques : www.georisques.gouv.fr
Informations financières
Taxe foncière : 480 €
Biens similaires aux alentours

Exclusif
Sous-compromis
Appartement - 5 pièces - 150 m²
01480 Villeneuve 259 000 €
Exclusif
Appartement - 4 pièces - 91 m²
69400 Villefranche-sur-Saône 229 000 €
Exclusif
Appartement - 4 pièces - 132 m²
69220 Belleville-en-Beaujolais 299 000 €
Exclusif
Sous-compromis
Appartement - 4 pièces - 127 m²
01480 Villeneuve 245 000 €Ce bien vous intéresse ?
Laissez un message
Votre contact
VANETTI Virginia
Villefranche-sur-Saône