Caractéristiques
-
Surface 152.26 m²
-
Surface habitable 152.26 m²
-
Surface terrain 1500 m²
-
Surface sejour 74 m²
-
Nombre de pièces 6
-
Nombre de chambres 4
-
Nombre de salles d'eau 2
-
Nombre de toilettes 2
-
Nombre de parkings 4
-
Nombre de parkings couverts 1
-
Terrain piscinable 1
-
Jardin 1
-
Nombre d' étages 1
-
Nombre de niveaux 1
Description
Mandat 159
Vous cherchez une maison familiale? elle vous attend à Corcelles en Beaujolais.
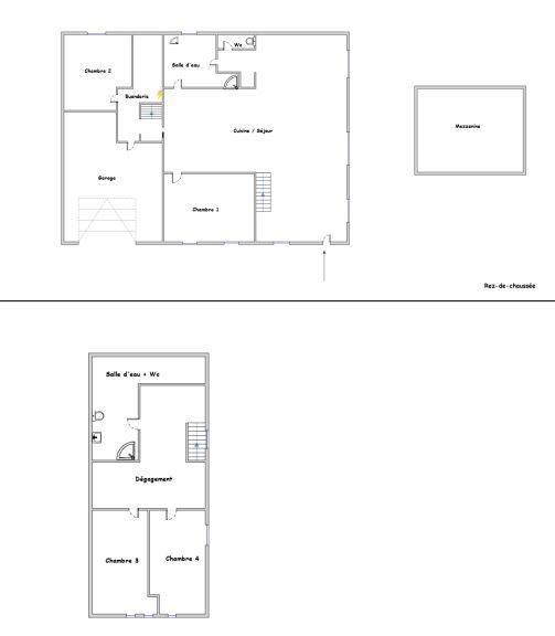
Ancien cuvage transformé en une agréable maison en partie de Plain Pied qui bénéficie d'un grand terrain, de la vue et sans vis à vis.
Grande pièce de vie qui profite d'une vue et accès au jardin grâce aux grandes baies à galandages.
La cuisine aménagée et équipée offre le plaisir de recevoir ses invités tout en cuisinant.
Celui qui souhaite un grand bureau avec cette même vue panoramique et exposition sud pourra s'installer sur la mezzanine ouverte.
En retrait et de plain pied 2 chambres ainsi qu'une salle d'eau et espace buanderie.
A l'étage, 2 chambres supplémentaires - une salle d'eau avec toilette ainsi qu'un coin kitchenette, pour vos ados qui voudraient un chez eux, chez vous.
L'habitation profite également d'un grand volume de garage avec espace de rangement.
Quant à l'extérieur, en partie clos et arboré, toute la magie opère grâce la vue panoramique, l'absence totale de vis à vis, et tout ceci à 5mn en voiture de Belleville centre - 20min. de la gare TGV de Macon Loché ou 25min. de Villefranche centre.
Coté technique : climatisation réversible - poêle à granules - portes-fenêtres double vitrage à galandage en alu - fenêtres PVC double vitrage - volets roulants électriques sur toutes les ouvertures - portail d'entrée coulissant - maison fibrée.
Je reste à votre écoute et à votre disposition pour tout renseignement complémentaire ou visites..
Virginia VANETTI : 06.12.58.78.21 ou v.vanetti@pietrapolis.fr
www.pietrapolis.fr/negociateur/virginia.vanetti
Agent commercial 503301772 RSAC Villefranche Tarare
Ancien cuvage transformé en une agréable maison en partie de Plain Pied qui bénéficie d'un grand terrain, de la vue et sans vis à vis.
Grande pièce de vie qui profite d'une vue et accès au jardin grâce aux grandes baies à galandages.
La cuisine aménagée et équipée offre le plaisir de recevoir ses invités tout en cuisinant.
Celui qui souhaite un grand bureau avec cette même vue panoramique et exposition sud pourra s'installer sur la mezzanine ouverte.
En retrait et de plain pied 2 chambres ainsi qu'une salle d'eau et espace buanderie.
A l'étage, 2 chambres supplémentaires - une salle d'eau avec toilette ainsi qu'un coin kitchenette, pour vos ados qui voudraient un chez eux, chez vous.
L'habitation profite également d'un grand volume de garage avec espace de rangement.
Quant à l'extérieur, en partie clos et arboré, toute la magie opère grâce la vue panoramique, l'absence totale de vis à vis, et tout ceci à 5mn en voiture de Belleville centre - 20min. de la gare TGV de Macon Loché ou 25min. de Villefranche centre.
Coté technique : climatisation réversible - poêle à granules - portes-fenêtres double vitrage à galandage en alu - fenêtres PVC double vitrage - volets roulants électriques sur toutes les ouvertures - portail d'entrée coulissant - maison fibrée.
Je reste à votre écoute et à votre disposition pour tout renseignement complémentaire ou visites..
Virginia VANETTI : 06.12.58.78.21 ou v.vanetti@pietrapolis.fr
www.pietrapolis.fr/negociateur/virginia.vanetti
Agent commercial 503301772 RSAC Villefranche Tarare
Localisation et points d'intérêts
Bilan sur les performances énergétiques du bien
C
Date de réalisation : 14/06/2023Classe énergétique
C
157 kWh/m².an
Classe climatique
A
4 kg CO2/m².an
Estimation des coûts énergétiques annuels du logement
Entre 1410€ et 1950€ par an
Prix moyens de l'énergie indexés sur l'année 2022 (abonnements inclus)
Prix moyens de l'énergie indexés sur l'année 2022 (abonnements inclus)
Informations financières
Taxe foncière : 950 €
Biens similaires aux alentours
Exclusif
Maison - 8 pièces - 260 m²
69860 Deux-Grosnes, France 350 000 €
Exclusif
Maison - 5 pièces - 110 m²
69400 Porte des Pierres Dorées 330 000 €
Exclusif
Maison - 5 pièces - 116 m²
69640 Porte des Pierres Dorées 350 000 €
Maison - 5 pièces - 89 m²
69220 Belleville-en-Beaujolais 285 000 €
Exclusif
Sous-offre
Maison - 5 pièces - 97 m²
69830 Saint-Georges-de-Reneins 279 000 €
Maison - 5 pièces - 119 m²
69640 Saint-Julien 298 000 €
Maison - 5 pièces - 123 m²
01140 Saint-Étienne-sur-Chalaronne 280 000 €
Exclusif
Maison - 5 pièces - 128 m²
01090 Guéreins 335 000 €
Maison - 5 pièces - 130 m²
71680 Crêches-sur-Saône 339 000 €
Exclusif
Maison - 6 pièces - 186 m²
69460 Saint-Étienne-la-Varenne 329 000 €Ce bien vous intéresse ?
Laissez un message
Votre contact
VANETTI Virginia
Villefranche-sur-Saône