Caractéristiques
-
Surface 170 m²
-
Surface habitable 170 m²
-
Surface terrain 15 m²
-
Nombre de pièces 7
-
Nombre de chambres 5
-
Nombre de salles de bain 1
-
Nombre de salles d'eau 2
-
Nombre de toilettes 3
-
Chauffage collectif Collectif
-
Nombre d' étages 3
-
Nombre de niveaux 3
Description
Mandat 451
SAINT GEORGES DE RENEINS Centre village : 5 chambres - espace extérieur - prête à vivre
Maison magnifiquement rénovée, avec espace extérieur plein sud à l'abri des regards, située dans ruelle du village.
Ecoles (maternelle/primaire/collège) - Bus - Gare - Commerces sont immédiatement accessibles à pieds.
Opportunité qui se présente rarement.
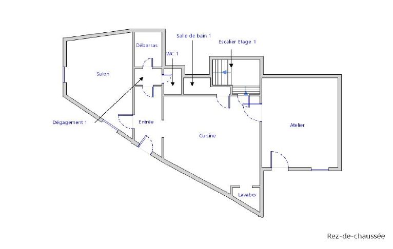
au RDC : entrée qui permet l'accès au salon ou à la cuisine dinatoire.
Buanderie - cellier - chaufferie - toilette - courette
A l'étage : 3 chambres - une salle d'eau - toilettes - espace rangement dressing
Au niveau supérieur : 2 chambres - salle d'eau - toilettes - grenier de 25m2
Prestations de qualité - beaux volumes - beau potentiel restant.
Un garage en locatif à 60€ /mois est possible juste en face de la maison.
coté technique:
chaudière gaz de ville - adoucisseur - possibilité d'ajouter un poêle à bois dans le salon après tubage du conduit - maison fibrée .
EDF : 750€ / an - gaz = 2000€ /an - Taxe Foncière : 700€/an
Vous souhaitez plus de renseignements ou programmer une visite?
contactez moi Virginia VANETTI : 06.12.58.78.21 ou v.vanetti@pietrapolis.fr
www.pietrapolis.fr/negociateur/virginia.vanetti
Agent commercial 503301772 RSAC Villefranche Tarare
Maison magnifiquement rénovée, avec espace extérieur plein sud à l'abri des regards, située dans ruelle du village.
Ecoles (maternelle/primaire/collège) - Bus - Gare - Commerces sont immédiatement accessibles à pieds.
Opportunité qui se présente rarement.
au RDC : entrée qui permet l'accès au salon ou à la cuisine dinatoire.
Buanderie - cellier - chaufferie - toilette - courette
A l'étage : 3 chambres - une salle d'eau - toilettes - espace rangement dressing
Au niveau supérieur : 2 chambres - salle d'eau - toilettes - grenier de 25m2
Prestations de qualité - beaux volumes - beau potentiel restant.
Un garage en locatif à 60€ /mois est possible juste en face de la maison.
coté technique:
chaudière gaz de ville - adoucisseur - possibilité d'ajouter un poêle à bois dans le salon après tubage du conduit - maison fibrée .
EDF : 750€ / an - gaz = 2000€ /an - Taxe Foncière : 700€/an
Vous souhaitez plus de renseignements ou programmer une visite?
contactez moi Virginia VANETTI : 06.12.58.78.21 ou v.vanetti@pietrapolis.fr
www.pietrapolis.fr/negociateur/virginia.vanetti
Agent commercial 503301772 RSAC Villefranche Tarare
Bilan sur les performances énergétiques du bien
D
Date de réalisation : 11/09/2024Classe énergétique
D
190 kWh/m².an
Classe climatique
D
40 kg CO2/m².an
Estimation des coûts énergétiques annuels du logement
Entre 2840€ et 3890€ par an
Prix moyens de l'énergie indexés sur l'année 0 (abonnements inclus)
Prix moyens de l'énergie indexés sur l'année 0 (abonnements inclus)
Les informations sur les risques auxquels ce bien est exposé sont disponibles sur le site Géorisques : www.georisques.gouv.fr
Informations financières
Taxe foncière : 700 €
Biens similaires aux alentours
Exclusif
Maison - 5 pièces - 110 m²
69400 Porte des Pierres Dorées 330 000 €
Exclusif
Maison - 5 pièces - 116 m²
69640 Porte des Pierres Dorées 350 000 €
Maison - 5 pièces - 89 m²
69220 Belleville-en-Beaujolais 285 000 €
Exclusif
Sous-offre
Maison - 5 pièces - 97 m²
69830 Saint-Georges-de-Reneins 279 000 €
Maison - 5 pièces - 119 m²
69640 Saint-Julien 298 000 €
Maison - 5 pièces - 123 m²
01140 Saint-Étienne-sur-Chalaronne 280 000 €
Exclusif
Maison - 5 pièces - 128 m²
01090 Guéreins 335 000 €
Maison - 5 pièces - 130 m²
71680 Crêches-sur-Saône 339 000 €
Exclusif
Maison - 6 pièces - 186 m²
69460 Saint-Étienne-la-Varenne 329 000 €
Maison - 6 pièces - 103 m²
69400 Villefranche-sur-Saône 299 000 €Ce bien vous intéresse ?
Laissez un message
Votre contact
VANETTI Virginia
Villefranche-sur-Saône