Caractéristiques
-
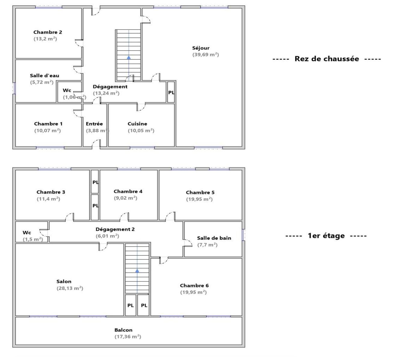
Surface 200.57 m²
-
Surface habitable 200.57 m²
-
Surface terrain 724 m²
-
Surface sejour 40 m²
-
Surface balcon 17 m²
-
Nombre de pièces 8
-
Nombre de chambres 6
-
Nombre de salles de bain 1
-
Nombre de salles d'eau 1
-
Nombre de toilettes 2
-
Nombre de parkings 2
-
Nombre de parkings couverts 2
-
Terrasse 1
-
Piscine Oui
-
Jardin 1
-
Climatisation Oui
-
Nombre d' étages 3
-
Nombre de niveaux 3
-
Annee construction 1970
Description
Mandat 21076
EXCLUSIVITE - Belle opportunité à Meyzieu ! Découvrez cette maison à rénover, sur un terrain divisible offrant la possibilité d’une deuxième construction.
Située dans un environnement calme et résidentiel cette maison des années 70 offre 200 m² habitables (295m2 avec le sous-sol) sur un terrain de 724 m².
Elle vous séduira par son cachet, son grand potentiel de rénovation et la possibilité de diviser le terrain grâce à une ouverture existante au fond du jardin.
À l’intérieur :
• Un séjour d’environ 40m²
• Une cuisine indépendante
• Six chambres, un second salon à l'étage (ou salle de jeu)
• Une salle de bains et une salle d’eau
• Un grand sous-sol (garage)de 95 m² avec cave
À l’extérieur :
• Terrain de 724 m² avec un spacieux jardin.
• Piscine (avec pompe à chaleur)
• Garage de 20 m² et stationnements extérieurs
• Accès possible par le fond du jardin, ouvrant sur une autre rue
À proximité :
• Transports, commerces et écoles accessibles en quelques minutes
Informations complémentaires :
• Cheminée, pompe à chaleur, ballon thermodynamique, portail motorisé, huisseries simple vitrages, toiture ok et bonne isolation du toit.
• Honoraires à la charge du vendeur.
Une maison pleine de charme et riche en possibilités, idéale pour un projet familial ou un investisseur souhaitant valoriser un terrain divisible.
Pour plus d’informations ou pour organiser une visite en toute confidentialité,
contactez : Aurore KOPF 06 63 89 82 46 disponible 7/7
Située dans un environnement calme et résidentiel cette maison des années 70 offre 200 m² habitables (295m2 avec le sous-sol) sur un terrain de 724 m².
Elle vous séduira par son cachet, son grand potentiel de rénovation et la possibilité de diviser le terrain grâce à une ouverture existante au fond du jardin.
À l’intérieur :
• Un séjour d’environ 40m²
• Une cuisine indépendante
• Six chambres, un second salon à l'étage (ou salle de jeu)
• Une salle de bains et une salle d’eau
• Un grand sous-sol (garage)de 95 m² avec cave
À l’extérieur :
• Terrain de 724 m² avec un spacieux jardin.
• Piscine (avec pompe à chaleur)
• Garage de 20 m² et stationnements extérieurs
• Accès possible par le fond du jardin, ouvrant sur une autre rue
À proximité :
• Transports, commerces et écoles accessibles en quelques minutes
Informations complémentaires :
• Cheminée, pompe à chaleur, ballon thermodynamique, portail motorisé, huisseries simple vitrages, toiture ok et bonne isolation du toit.
• Honoraires à la charge du vendeur.
Une maison pleine de charme et riche en possibilités, idéale pour un projet familial ou un investisseur souhaitant valoriser un terrain divisible.
Pour plus d’informations ou pour organiser une visite en toute confidentialité,
contactez : Aurore KOPF 06 63 89 82 46 disponible 7/7
Bilan sur les performances énergétiques du bien
E
Date de réalisation : 04/11/2025Classe énergétique
E
287 kWh/m².an
Classe climatique
B
9 kg CO2/m².an
Estimation des coûts énergétiques annuels du logement
Entre 3440€ et 4730€ par an
Prix moyens de l'énergie indexés sur l'année 0 (abonnements inclus)
Prix moyens de l'énergie indexés sur l'année 0 (abonnements inclus)
Les informations sur les risques auxquels ce bien est exposé sont disponibles sur le site Géorisques : www.georisques.gouv.fr
Biens similaires aux alentours
Maison - 5 pièces - 171 m²
38280 Anthon 540 000 €
Maison - 4 pièces - 122 m²
69450 Saint-Cyr-au-Mont-d'Or 470 000 €
Maison - 6 pièces - 135 m²
69960 Corbas 437 000 €
Maison - 7 pièces - 185 m²
69730 Genay 495 000 €
Exclusif
Maison - 4 pièces - 70 m²
69005 Lyon 549 000 €
Exclusif
Maison - 6 pièces - 162 m²
69140 Rillieux-la-Pape 550 000 €
Maison - 4 pièces - 135 m²
69100 Villeurbanne 560 000 €
Maison - 10 pièces - 200 m²
01360 Balan 420 000 €
Exclusif
Sous-compromis
Maison - 7 pièces - 218 m²
01800 Saint-Maurice-de-Gourdans 459 000 €
Exclusif
Sous-compromis
Maison - 6 pièces - 130 m²
69250 Fleurieu-sur-Saône 385 000 €Ce bien vous intéresse ?
Laissez un message
Votre contact
KOPF Aurore
Lyon 7