Caractéristiques
-
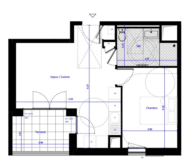
Surface 40.12 m²
-
Surface carrez 40.12 m²
-
Nombre de pièces 2
-
Nombre de chambres 1
-
Nombre de salles d'eau 1
-
Nombre de toilettes 1
-
Nombre de parkings 1
-
Terrasse 1
-
Annee construction 2025
-
Ascenseur Oui
Description
Mandat 21086
David Lescuyer vous propose de découvrir AMBRE.
AMBRE est une résidence de 27 logements au sud du Beaujolais, en plein cœur de la Vallée d'Azergues. Du T2 au T5 les 27 appartements sont répartis sur deux bâtiments.
Les deux bâtiments partagent leur circulation verticale, située dans le bâtiment B. Une passerelle relie le premier étage du bâtiment A à la circulation verticale.
Les deux bâtiments sont perpendiculaires à la Route de Belleville et sont découpés avec des masses bâties travaillées, des faitages différenciés en hauteur ainsi que des fractionnements créés pour intégrer des balcons alors que les autres espaces extérieurs seront des loggias : cela casse l'effet monolithique de la construction. Ainsi, cet ensemble forme une morphologie de bâti dense mais à la volumétrie irrégulière à la manière de ce que l'on peut retrouver dans le centre-bourg de Chessy les Mines. AMBRE est en secteur ABF.
Le mur de clôture sera constitué en pierre naturelle de type pierres dorées. Chaque logement dispose d'un bel espace extérieur.
AMBRE met en évidence une végétation soignée avec des espaces spécialement aménagés pour la nature. Située dans un quartier où la végétation est très présente, la résidence se fond harmonieusement dans une trame urbaine verdoyante. Des plantations seront réalisées pour renforcer cet équilibre et préserver l’environnement. Le jardin commun crée un écrin de fraîcheur et de couleurs, avec ses arbres majestueux, ses massifs luxuriants et ses graminées ondulantes. En perspective, un mode de vie responsable et durable.
N'hésitez pas à me contacter pour plus de renseignements.
AMBRE est une résidence de 27 logements au sud du Beaujolais, en plein cœur de la Vallée d'Azergues. Du T2 au T5 les 27 appartements sont répartis sur deux bâtiments.
Les deux bâtiments partagent leur circulation verticale, située dans le bâtiment B. Une passerelle relie le premier étage du bâtiment A à la circulation verticale.
Les deux bâtiments sont perpendiculaires à la Route de Belleville et sont découpés avec des masses bâties travaillées, des faitages différenciés en hauteur ainsi que des fractionnements créés pour intégrer des balcons alors que les autres espaces extérieurs seront des loggias : cela casse l'effet monolithique de la construction. Ainsi, cet ensemble forme une morphologie de bâti dense mais à la volumétrie irrégulière à la manière de ce que l'on peut retrouver dans le centre-bourg de Chessy les Mines. AMBRE est en secteur ABF.
Le mur de clôture sera constitué en pierre naturelle de type pierres dorées. Chaque logement dispose d'un bel espace extérieur.
AMBRE met en évidence une végétation soignée avec des espaces spécialement aménagés pour la nature. Située dans un quartier où la végétation est très présente, la résidence se fond harmonieusement dans une trame urbaine verdoyante. Des plantations seront réalisées pour renforcer cet équilibre et préserver l’environnement. Le jardin commun crée un écrin de fraîcheur et de couleurs, avec ses arbres majestueux, ses massifs luxuriants et ses graminées ondulantes. En perspective, un mode de vie responsable et durable.
N'hésitez pas à me contacter pour plus de renseignements.
En copropriété
Nombre de lots : 27
Pas de procédures en cours
Biens similaires aux alentours
Appartement - 3 pièces - 69 m²
69009 Lyon 175 000 €
Exclusif
Appartement - 1 pièce - 32 m²
69650 Saint-Germain-au-Mont-d'Or 150 000 €
Exclusif
Appartement - 3 pièces - 69 m²
69400 Villefranche-sur-Saône 169 000 €
Exclusif
Appartement - 3 pièces - 61 m²
69005 Lyon 199 000 €
Appartement - 2 pièces - 58 m²
69250 Neuville-sur-Saône 219 000 €
Exclusif
Appartement - 3 pièces - 52 m²
01480 Ars-sur-Formans 179 000 €
Appartement - 3 pièces - 60 m²
69009 Lyon 189 000 €
Exclusif
Sous-offre
Appartement - 3 pièces - 77 m²
69400 Villefranche-sur-Saône 188 000 €
Exclusif
Appartement - 2 pièces - 49 m²
69005 Lyon 149 000 €
Appartement - 3 pièces - 76 m²
69730 Genay 220 000 €Ce bien vous intéresse ?
Laissez un message
Votre contact
LESCUYER David
Lyon 7