Caractéristiques
-
Surface 88 m²
-
Surface carrez 88 m²
-
Nombre de pièces 3
-
Nombre de chambres 2
-
Nombre de salles d'eau 2
-
Nombre de toilettes 1
-
Etage 4
-
Digicode Oui
Description
Mandat 20636
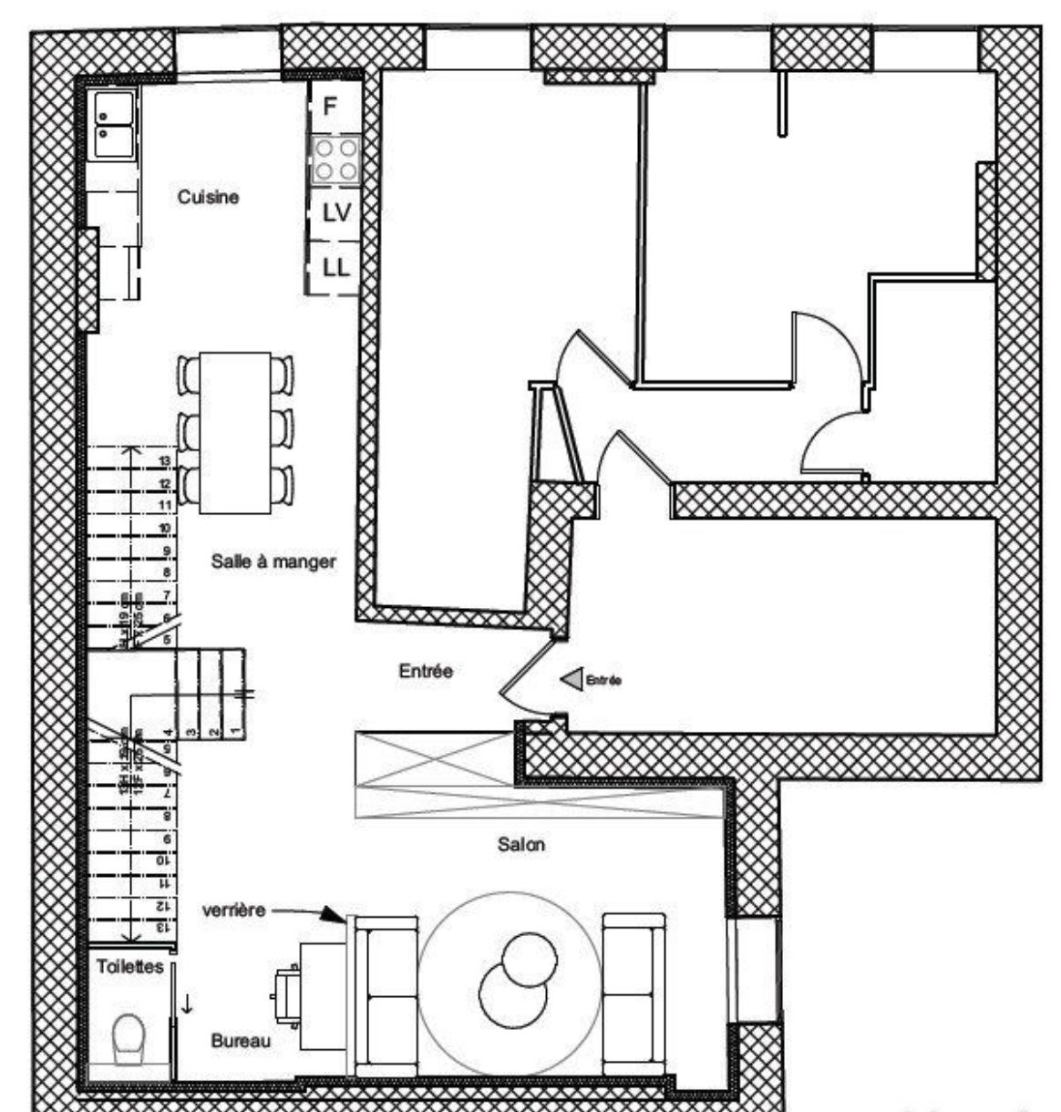
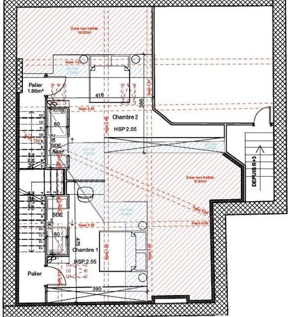
Duplex Charmant à Rénover au Cœur de Lyon 69006
Imaginez vivre dans un duplex unique, au cœur de Lyon, dans le prestigieux 6e arrondissement. Cet appartement de 88 m², niché au 4ème étage d'un immeuble ancien, offre une opportunité rare de créer un véritable havre de paix personnalisé. Cet espace généreux se compose de trois pièces principales, dont deux chambres et deux salles d'eau, ainsi qu'un WC indépendant.
L'état général du bien est ancien, ce qui signifie que vous aurez la liberté de le rénover selon vos goûts et vos envies.
Les combles offrent un potentiel supplémentaire pour agrandir encore plus votre espace de vie.
La cuisine, nue, est un véritable terrain de jeu pour les amateurs de décoration intérieure. Imaginez-la équipée de meubles sur mesure et d'appareils électroménagers modernes, créant un espace convivial et fonctionnel.
Situé à proximité de nombreuses commodités, ce duplex est idéal pour une vie urbaine épanouissante. À seulement 5 minutes à pied, vous trouverez des arrêts de bus, des stations de métro et de tramway, ainsi que des écoles allant de la crèche au collège. Les amateurs de gastronomie seront ravis de découvrir les nombreux restaurants à proximité, tandis que les amoureux de la nature pourront se détendre dans les parcs et jardins voisins.
Ne manquez pas l'opportunité de transformer ce duplex en un lieu de vie exceptionnel. Contactez-nous dès aujourd'hui pour organiser une visite et découvrir tout le potentiel de cet appartement unique.
N'hésitez plus pour visiter ou faire estimer votre bien, prenez rendez-vous:
https://calendly.com/s-riondet/30min?month=2024-03
Contactez Sébastien Riondet au 0647332216 ou s.riondet@pietrapolis.fr
Imaginez vivre dans un duplex unique, au cœur de Lyon, dans le prestigieux 6e arrondissement. Cet appartement de 88 m², niché au 4ème étage d'un immeuble ancien, offre une opportunité rare de créer un véritable havre de paix personnalisé. Cet espace généreux se compose de trois pièces principales, dont deux chambres et deux salles d'eau, ainsi qu'un WC indépendant.
L'état général du bien est ancien, ce qui signifie que vous aurez la liberté de le rénover selon vos goûts et vos envies.
Les combles offrent un potentiel supplémentaire pour agrandir encore plus votre espace de vie.
La cuisine, nue, est un véritable terrain de jeu pour les amateurs de décoration intérieure. Imaginez-la équipée de meubles sur mesure et d'appareils électroménagers modernes, créant un espace convivial et fonctionnel.
Situé à proximité de nombreuses commodités, ce duplex est idéal pour une vie urbaine épanouissante. À seulement 5 minutes à pied, vous trouverez des arrêts de bus, des stations de métro et de tramway, ainsi que des écoles allant de la crèche au collège. Les amateurs de gastronomie seront ravis de découvrir les nombreux restaurants à proximité, tandis que les amoureux de la nature pourront se détendre dans les parcs et jardins voisins.
Ne manquez pas l'opportunité de transformer ce duplex en un lieu de vie exceptionnel. Contactez-nous dès aujourd'hui pour organiser une visite et découvrir tout le potentiel de cet appartement unique.
N'hésitez plus pour visiter ou faire estimer votre bien, prenez rendez-vous:
https://calendly.com/s-riondet/30min?month=2024-03
Contactez Sébastien Riondet au 0647332216 ou s.riondet@pietrapolis.fr
Bilan sur les performances énergétiques du bien
G
Classe énergétique
G
469 kWh/m².an
Logement à consommation d'énergie excessive
Classe climatique
C
15 kg CO2/m².an
Estimation des coûts énergétiques annuels du logement
Entre 1450€ et 1990€ par an
Prix moyens de l'énergie indexés sur l'année 2021 (abonnements inclus)
Prix moyens de l'énergie indexés sur l'année 2021 (abonnements inclus)
Les informations sur les risques auxquels ce bien est exposé sont disponibles sur le site Géorisques : www.georisques.gouv.fr
Informations financières
Charges mensuelles : 100 €
En copropriété
Nombre de lots : 10
Pas de procédures en cours
Biens similaires aux alentours
Exclusif
Appartement - 4 pièces - 81 m²
69100 Villeurbanne 300 000 €
Prestige
Appartement - 2 pièces - 54 m² - PRESTIGE
69004 Lyon 269 000 €
Exclusif
Appartement - 3 pièces - 74 m²
69250 Neuville-sur-Saône 298 000 €
Exclusif
Appartement - 4 pièces - 93 m²
69140 Rillieux-la-Pape 329 000 €
Appartement - 2 pièces - 52 m²
69004 Lyon 269 000 €
Appartement - 4 pièces - 90 m²
69600 Oullins 279 000 €
Exclusif
Appartement - 3 pièces - 74 m²
69730 Genay 298 000 €
Exclusif
Appartement - 3 pièces - 81 m²
69110 Sainte-Foy-lès-Lyon 360 000 €
Exclusif
Appartement - 3 pièces - 70 m²
69390 Vernaison 281 000 €
Exclusif
Appartement - 3 pièces - 68 m²
69007 Lyon 319 000 €Ce bien vous intéresse ?
Laissez un message
Votre contact
RIONDET Sébastien
Lyon 3