Caractéristiques
-
Surface 84 m²
-
Surface carrez 84 m²
-
Surface sejour 40 m²
-
Nombre de pièces 4
-
Nombre de chambres 3
-
Nombre de salles d'eau 1
-
Nombre de toilettes 1
-
Nombre de parkings couverts 1
-
Etage 1
-
Annee construction 2008
-
Ascenseur Oui
-
Interphone Oui
Description
Mandat 1740
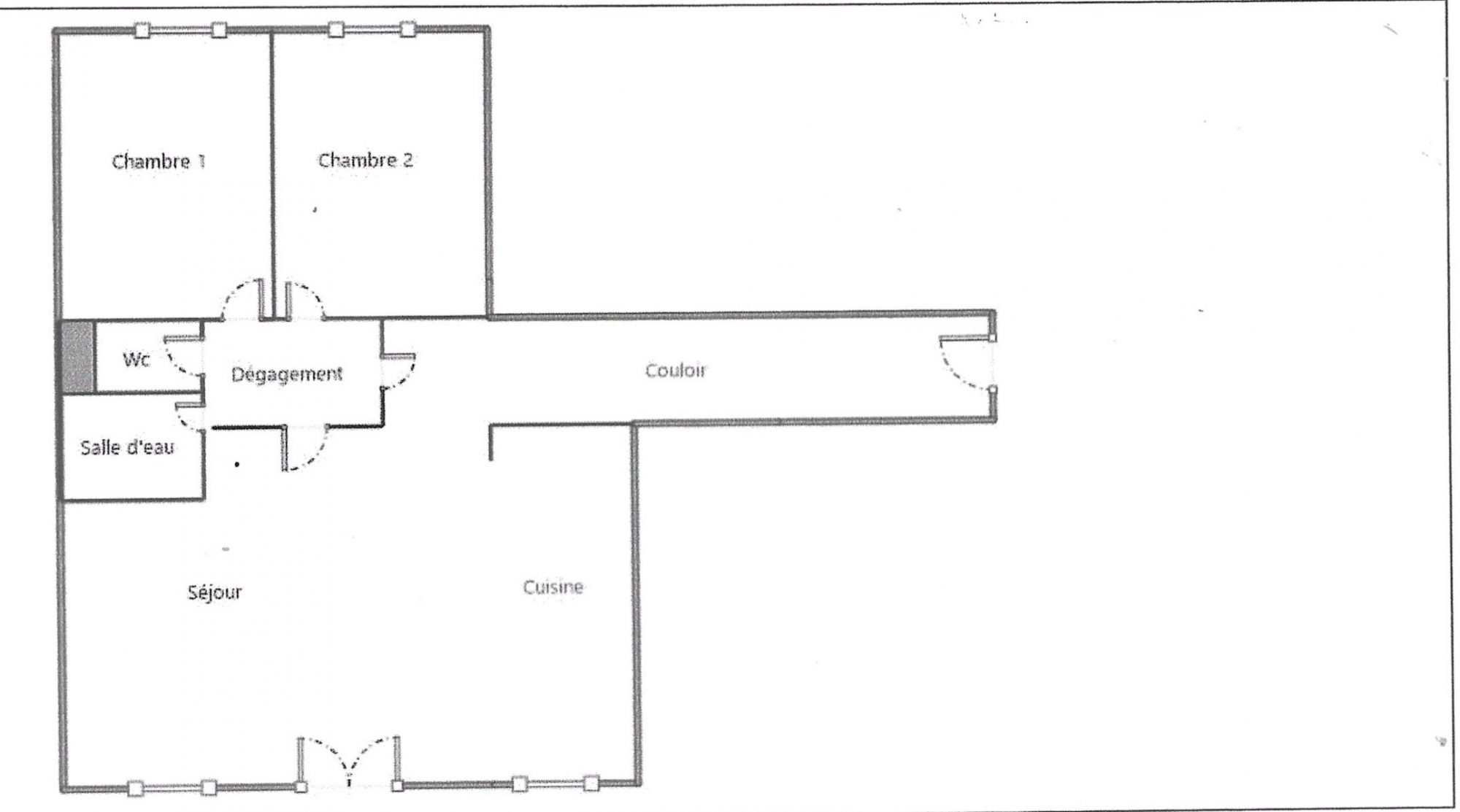
PIETRAPOLIS vous présente cet appartement de type T3/T4 de 84 m2 situé rue Alexandre Boutin proche Cours Emile Zola dans une résidence de 2008.
Au 1er étage avec ascenseur il est traversant , exposé EST/OUEST.
Il est composé d'une entrée, d'une pièce de vie avec cuisine aménagée et équipée de 40 m2 , de 2 chambres (possibilité de faire facilement une 3 -ème chambre devis déjà effectué) d'une salle d'eau et d'un WC indépendant.
L'appartement bénéficie d'un box fermé en sous-sol (en supplément)
Le chauffage est individuel au gaz.
Les +++:
-Faibles charges de copropriété : 100 € par mois
-Pièce de vie climatisée
-Possibilité 3 -ème chambre
-Local à vélos
Une visite? Un renseignement?
Contact: Nathalie Bismuth
Tél : 06/23/62/75/42
n.bismuth@pietrapolis.fr
Agente commerciale RSAC : N° 881 166 938 00012
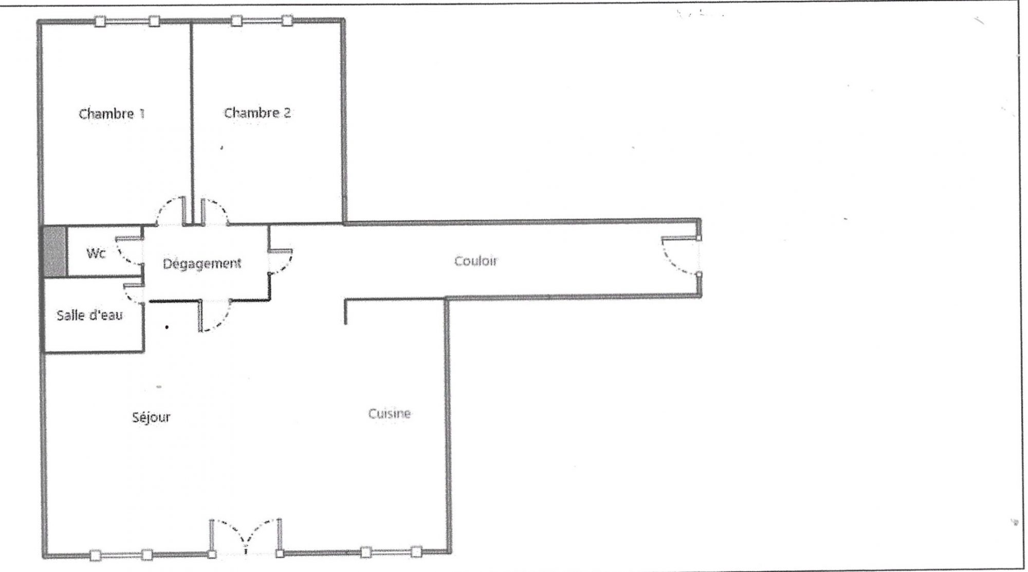
Au 1er étage avec ascenseur il est traversant , exposé EST/OUEST.
Il est composé d'une entrée, d'une pièce de vie avec cuisine aménagée et équipée de 40 m2 , de 2 chambres (possibilité de faire facilement une 3 -ème chambre devis déjà effectué) d'une salle d'eau et d'un WC indépendant.
L'appartement bénéficie d'un box fermé en sous-sol (en supplément)
Le chauffage est individuel au gaz.
Les +++:
-Faibles charges de copropriété : 100 € par mois
-Pièce de vie climatisée
-Possibilité 3 -ème chambre
-Local à vélos
Une visite? Un renseignement?
Contact: Nathalie Bismuth
Tél : 06/23/62/75/42
n.bismuth@pietrapolis.fr
Agente commerciale RSAC : N° 881 166 938 00012
Bilan sur les performances énergétiques du bien
C
Date de réalisation : 02/03/2025Classe énergétique
C
104 kWh/m².an
Classe climatique
C
18 kg CO2/m².an
Estimation des coûts énergétiques annuels du logement
Entre 940€ et 1330€ par an
Prix moyens de l'énergie indexés sur l'année 0 (abonnements inclus)
Prix moyens de l'énergie indexés sur l'année 0 (abonnements inclus)
Informations financières
Taxe foncière : 1 400 €
Charges mensuelles : 100 €
En copropriété
Nombre de lots : 15
Pas de procédures en cours
Biens similaires aux alentours
Exclusif
Appartement - 4 pièces - 81 m²
69160 Tassin-la-Demi-Lune 275 000 €
Exclusif
Appartement - 3 pièces - 78 m²
69007 Lyon 260 000 €
Exclusif
Appartement - 4 pièces - 88 m²
69100 Villeurbanne 329 000 €
Exclusif
Appartement - 3 pièces - 59 m²
69007 LYON 299 000 €
Appartement - 3 pièces - 68 m²
69005 Lyon 315 000 €
Exclusif
Appartement - 3 pièces - 70 m²
69008 Lyon 290 000 €
Exclusif
Appartement - 3 pièces - 69 m²
69100 Villeurbanne 315 000 €
Exclusif
Appartement - 3 pièces - 68 m²
69100 Villeurbanne 270 000 €
Exclusif
Appartement - 4 pièces - 109 m²
01700 Miribel 345 000 €
Exclusif
Appartement - 4 pièces - 109 m²
69140 Rillieux-la-Pape 345 000 €Ce bien vous intéresse ?
Laissez un message
Votre contact
BISMUTH Nathalie
Caluire-et-Cuire