Caractéristiques
-
Surface 220 m²
-
Surface habitable 220 m²
-
Surface terrain 180 m²
-
Nombre de pièces 10
-
Nombre de chambres 5
-
Nombre de salles d'eau 3
-
Nombre de toilettes 3
-
Nombre de parkings 2
-
Jardin 1
-
Chauffage collectif Collectif
-
Nombre d' étages 2
-
Nombre de niveaux 2
Description
Mandat 5791
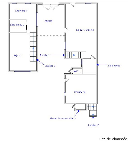
MONTMERLE CENTRE VILLAGE : maison offrant la possibilité de créer 3 logements locatifs avec avec extérieur
Actuellement la propriété propose 2 maisons l'une d'env. 110m2 et l'autre d'env. 70m2
Maison 1 =110m2
en rdc T2 potentiel avec accès indépendant depuis la ruelle et depuis la cour: pièce de vie avec cuisine - salle d'eau toilette
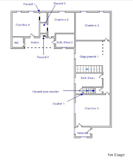
étage : T3 potentiel avec accès indépendant depuis la cour intérieure : grand dégagement - 2 grandes chambres - salle d'eau avec toilette
étage supérieur : espace potentiel salle d'eau - très grande chambre avec hauteur sous plafond pouvant facilement être divisée en 2 chambres
Maison 2 = 70m2
en rdc : chambre avec salle d'eau - salon /salle à manger
étage : 2 chambres - salle d'eau - toilette
S'ajoutent une cave voutée en sous sol - une chaufferie/rangement - un toilette - ainsi que la dépendance de 80m2 env., en fond de parcelle pouvant servir de parking couvert
L'accès voiture se fait par le porche aux grandes portes ouvrantes qui seraient aisées à être motorisées
La maison est parfaitement entretenue
Coté technique : fenêtres bois double vitrage - volets bois battants - chaudière au gaz de ville - parquets bois massif sur une partie de l'étage
Taxe foncière : 1130€ / an
Appelez moi sans tarder, je reste à votre écoute et à votre disposition pour tout renseignement complémentaire ou visites.
Virginia VANETTI : 06.12.58.78.21 ou v.vanetti@pietrapolis.fr
www.villefranche.pietrapolis.fr/virginia.vanetti
Agent commercial 503301772 RSAC Villefranche
Actuellement la propriété propose 2 maisons l'une d'env. 110m2 et l'autre d'env. 70m2
Maison 1 =110m2
en rdc T2 potentiel avec accès indépendant depuis la ruelle et depuis la cour: pièce de vie avec cuisine - salle d'eau toilette
étage : T3 potentiel avec accès indépendant depuis la cour intérieure : grand dégagement - 2 grandes chambres - salle d'eau avec toilette
étage supérieur : espace potentiel salle d'eau - très grande chambre avec hauteur sous plafond pouvant facilement être divisée en 2 chambres
Maison 2 = 70m2
en rdc : chambre avec salle d'eau - salon /salle à manger
étage : 2 chambres - salle d'eau - toilette
S'ajoutent une cave voutée en sous sol - une chaufferie/rangement - un toilette - ainsi que la dépendance de 80m2 env., en fond de parcelle pouvant servir de parking couvert
L'accès voiture se fait par le porche aux grandes portes ouvrantes qui seraient aisées à être motorisées
La maison est parfaitement entretenue
Coté technique : fenêtres bois double vitrage - volets bois battants - chaudière au gaz de ville - parquets bois massif sur une partie de l'étage
Taxe foncière : 1130€ / an
Appelez moi sans tarder, je reste à votre écoute et à votre disposition pour tout renseignement complémentaire ou visites.
Virginia VANETTI : 06.12.58.78.21 ou v.vanetti@pietrapolis.fr
www.villefranche.pietrapolis.fr/virginia.vanetti
Agent commercial 503301772 RSAC Villefranche
Bilan sur les performances énergétiques du bien
E
Date de réalisation : 21/08/2023Classe énergétique
E
276 kWh/m².an
Classe climatique
D
37 kg CO2/m².an
Estimation des coûts énergétiques annuels du logement
Entre 3700€ et 5060€ par an
Prix moyens de l'énergie indexés sur l'année 2021 (abonnements inclus)
Prix moyens de l'énergie indexés sur l'année 2021 (abonnements inclus)
Les informations sur les risques auxquels ce bien est exposé sont disponibles sur le site Géorisques : www.georisques.gouv.fr
Informations financières
Taxe foncière : 1 130 €
Biens similaires aux alentours
Maison - 4 pièces - 105 m²
69490 Sarcey 299 000 €
Exclusif
Maison - 4 pièces - 105 m²
69830 Saint-Georges-de-Reneins 325 000 €
Exclusif
Maison - 3 pièces - 88 m²
69250 Neuville-sur-Saône 349 000 €
Exclusif
Maison - 4 pièces - 128 m²
69460 Vaux-en-Beaujolais 375 000 €
Exclusif
Maison - 6 pièces - 100 m²
01600 Sainte-Euphémie 330 000 €
Maison - 5 pièces - 155 m²
69490 Sarcey 349 000 €
Maison - 8 pièces - 192 m²
69380 Chessy 299 000 €
Exclusif
Maison - 5 pièces - 110 m²
69400 Porte des Pierres Dorées 330 000 €
Exclusif
Maison - 5 pièces - 116 m²
69640 Porte des Pierres Dorées 350 000 €
Maison - 5 pièces - 119 m²
69640 Saint-Julien 298 000 €Ce bien vous intéresse ?
Laissez un message
Votre contact
VANETTI Virginia
Villefranche-sur-Saône