Caractéristiques
-
Surface 223 m²
-
Surface habitable 223 m²
-
Surface terrain 612 m²
-
Surface sejour 47 m²
-
Nombre de pièces 8
-
Nombre de chambres 5
-
Nombre de salles de bain 1
-
Nombre de salles d'eau 2
-
Nombre de toilettes 3
-
Nombre de parkings couverts 3
-
Terrain piscinable 1
-
Jardin 1
-
Nombre d' étages 2
-
Nombre de niveaux 2
-
Annee construction 1855
Description
Mandat 677
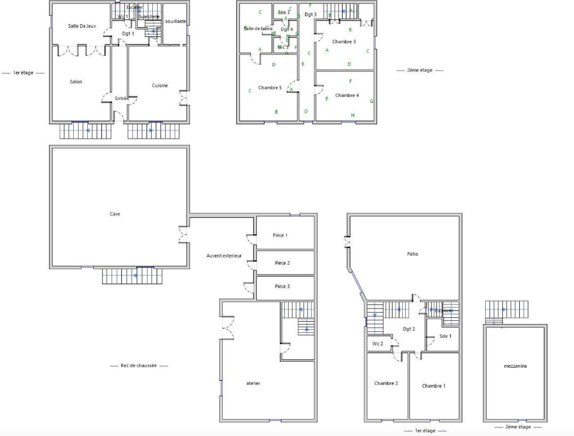
Sur la commune de Blacé à seulement 15 min de Villefranche et de l'accès A6, maison de maître pleine de charme de 223 m2 hab reliée à une authentique maison en pierres offrant un fort potentiel d'aménagement, chambres d'hôtes, espace de travail, logement indépendant... à vous de créer votre projet.
cette maison offre actuellement une entrée avec ses carreaux de ciment, un salon de 20 m2 qu'il est possible d’agrandir sans difficulté et sa cheminée qui apporte du caractère sur ce coin cosy, une cuisine avec un coin cellier,
Une communication directe avec la maison en pierres donne l'accès à un vaste séjour en pierres de 47 m2 , puis deux chambres, un wc et une salle d'eau ainsi qu'une mezzanine aménagée en pièce de jeux ou autre.
Au rez de chaussée un atelier de 37 m2 aménageable qui peut rendre cette dépendance entièrement habitable.
A l'étage de la maison principale se loge trois chambres une salle de bains, un wc et une douche.
Coté dépendance, une cave, un atelier et chaufferie de 73 m2 idéal pour du stockage.
coté jardin, une cour pour y loger 3/4 véhicules, un espace vert piscinable, un patio très agréable pendant les grosses chaleur.
les transports en commun sont à la portes de la maison et le village est accessible à pied.
cette maison offre actuellement une entrée avec ses carreaux de ciment, un salon de 20 m2 qu'il est possible d’agrandir sans difficulté et sa cheminée qui apporte du caractère sur ce coin cosy, une cuisine avec un coin cellier,
Une communication directe avec la maison en pierres donne l'accès à un vaste séjour en pierres de 47 m2 , puis deux chambres, un wc et une salle d'eau ainsi qu'une mezzanine aménagée en pièce de jeux ou autre.
Au rez de chaussée un atelier de 37 m2 aménageable qui peut rendre cette dépendance entièrement habitable.
A l'étage de la maison principale se loge trois chambres une salle de bains, un wc et une douche.
Coté dépendance, une cave, un atelier et chaufferie de 73 m2 idéal pour du stockage.
coté jardin, une cour pour y loger 3/4 véhicules, un espace vert piscinable, un patio très agréable pendant les grosses chaleur.
les transports en commun sont à la portes de la maison et le village est accessible à pied.
Détail des pièces
- Hall entrée: 8.84 m²
- Salon: 20.23 m²
- Cuisine: 20.29 m²
- Bureau ou extension salon: 8.72 m²
- Séjour: 47 m²
- Chambre 1: 10.73 m²
- Chambre 2: 9.74 m²
- Salle d'eau: 3.82 m²
- Wc: 1.18 m²
- Wc: 1.48 m²
- Buanderie: 2.81 m²
- Chambre 3: 18.33 m²
- Chambre 4: 13.85 m²
- Chambre 5: 12.2 m²
- Salle de bains: 5.91 m²
- Douche: 1.83 m²
- Wc: 1.37 m²
- Mezzanine: 11.49 m²
- Cellier: 2.87 m²
Bilan sur les performances énergétiques du bien
D
Date de réalisation : 28/09/2021Classe énergétique
D
242 kWh/m².an
Classe climatique
D
36 kg CO2/m².an
Estimation des coûts énergétiques annuels du logement
Entre 4706€ et 6366€ par an
Prix moyens de l'énergie indexés sur l'année 2021 (abonnements inclus)
Prix moyens de l'énergie indexés sur l'année 2021 (abonnements inclus)
Les informations sur les risques auxquels ce bien est exposé sont disponibles sur le site Géorisques : www.georisques.gouv.fr
Informations financières
Taxe foncière : 1 300 €
Biens similaires aux alentours
Exclusif
Maison - 5 pièces - 147 m²
69650 Quincieux 499 000 €
Maison - 7 pièces - 151 m²
01600 Saint-Didier-de-Formans 419 000 €
Maison - 5 pièces - 154 m²
01480 Savigneux 495 000 €
Exclusif
Maison - 10 pièces - 220 m²
69400 Villefranche-sur-Saône 349 000 €
Exclusif
Maison - 4 pièces - 128 m²
69460 Vaux-en-Beaujolais 375 000 €
Exclusif
Maison - 5 pièces - 140 m²
69400 Arnas 449 000 €
Exclusif
Maison - 5 pièces - 200 m²
69430 Régnié-Durette 465 000 €
Maison - 5 pièces - 155 m²
69490 Sarcey 349 000 €
Exclusif
Maison - 5 pièces - 116 m²
69640 Porte des Pierres Dorées 350 000 €
Exclusif
Maison - 4 pièces - 169 m²
69640 Porte des Pierres Dorées 510 000 €Ce bien vous intéresse ?
Laissez un message
Votre contact
LONGIN Sandrine
Villefranche-sur-Saône