Caractéristiques
-
Surface 62.5 m²
-
Surface carrez 62.5 m²
-
Surface sejour 16 m²
-
Nombre de pièces 3
-
Nombre de chambres 2
-
Nombre de salles d'eau 1
-
Nombre de toilettes 1
-
Jardin 1
-
Etage 2
-
Annee construction 1900
Description
Mandat 208131
Appartement T3 Traversant – Charme de l'Ancien – Calme et Proximité Commodités.
Situé dans un quartier calme et agréable, cet appartement de type T3 d'environ 62,50 m², traversant, bénéficie d'une belle luminosité grâce à son exposition Est-Ouest.
Il se compose de :
• Deux chambres, dont l'une est équipée d'une baignoire et d'un lave-mains, offrant ainsi un espace intime et pratique.
• Une salle d'eau séparée des WC, optimisant ainsi l’agencement de l’espace.
• Un salon lumineux avec de beaux volumes grâce à la hauteur sous plafond.
• De nombreux rangements intégrés, assurant un espace de vie fonctionnel et sans perte d’espace.
L’appartement bénéficie de deux caves et d’un jardin, parfait pour profiter du calme et de la tranquillité. Les fenêtres ont été remplacées l'année dernière.
Idéalement situé, il est à proximité de toutes les commodités (commerces, écoles, etc.) et des transports en commun, avec un tram T10 à venir et plusieurs lignes de bus à quelques pas.
Contact : Margaux PAUTRAT 06.70.89.55.80 m.pautrat@pietrapolis.fr (Agent Co. RSAC 835182262).
Situé dans un quartier calme et agréable, cet appartement de type T3 d'environ 62,50 m², traversant, bénéficie d'une belle luminosité grâce à son exposition Est-Ouest.
Il se compose de :
• Deux chambres, dont l'une est équipée d'une baignoire et d'un lave-mains, offrant ainsi un espace intime et pratique.
• Une salle d'eau séparée des WC, optimisant ainsi l’agencement de l’espace.
• Un salon lumineux avec de beaux volumes grâce à la hauteur sous plafond.
• De nombreux rangements intégrés, assurant un espace de vie fonctionnel et sans perte d’espace.
L’appartement bénéficie de deux caves et d’un jardin, parfait pour profiter du calme et de la tranquillité. Les fenêtres ont été remplacées l'année dernière.
Idéalement situé, il est à proximité de toutes les commodités (commerces, écoles, etc.) et des transports en commun, avec un tram T10 à venir et plusieurs lignes de bus à quelques pas.
Contact : Margaux PAUTRAT 06.70.89.55.80 m.pautrat@pietrapolis.fr (Agent Co. RSAC 835182262).
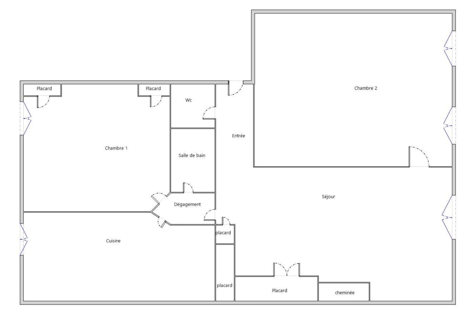
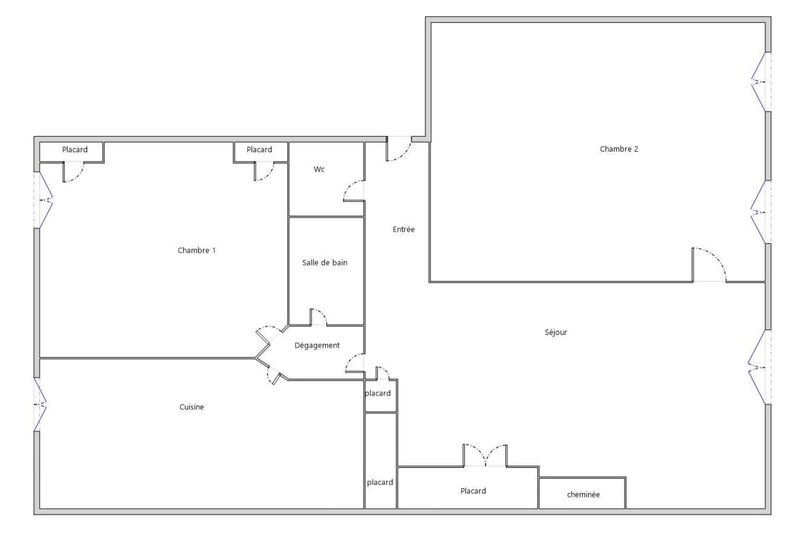
Détail des pièces
- Entrée : 1.8 m²
- Wc : 0.5 m²
- Séjour : 16.1 m²
- Dégagement : 2 m²
- Chambre 1: 10.6 m²
- Cuisine: 13.2 m²
- Salle d’eau : 1.8 m²
- Chambre 2: 16.5 m²
Bilan sur les performances énergétiques du bien
E
Date de réalisation : 27/02/2025Classe énergétique
E
257 kWh/m².an
Classe climatique
B
8 kg CO2/m².an
Estimation des coûts énergétiques annuels du logement
Entre 1092€ et 1479€ par an
Prix moyens de l'énergie indexés sur l'année 0 (abonnements inclus)
Prix moyens de l'énergie indexés sur l'année 0 (abonnements inclus)
Les informations sur les risques auxquels ce bien est exposé sont disponibles sur le site Géorisques : www.georisques.gouv.fr
Informations financières
Taxe foncière : 686 €
Charges mensuelles : 103 €
En copropriété
Nombre de lots : 13
Pas de procédures en cours
Biens similaires aux alentours

Appartement - 4 pièces - 78 m²
69800 Saint-Priest 144 000 €
Exclusif
Appartement - 4 pièces - 113 m²
69140 Rillieux-la-Pape 165 000 €
Exclusif
Appartement - 4 pièces - 67 m²
69100 Villeurbanne 170 000 €
Exclusif
Appartement - 3 pièces - 64 m²
69200 Vénissieux 160 000 €
Exclusif
Sous-offre
Appartement - 2 pièces - 41 m²
69008 Lyon 139 000 €
Exclusif
Appartement - 3 pièces - 78 m²
69800 Saint-Priest 159 000 €
Appartement - 4 pièces - 71 m²
69140 Rillieux-la-Pape 156 600 €
Exclusif
Appartement - 2 pièces - 38 m²
69800 Saint-Priest 149 000 €
Exclusif
Appartement - 2 pièces - 39 m²
69580 Sathonay-Camp 170 000 €
Exclusif
Appartement - 2 pièces - 49 m²
69005 Lyon 149 000 €Ce bien vous intéresse ?
Laissez un message
Votre contact
PAUTRAT Margaux
Lyon 3